Vuokrataan tuotantotilat - Helsinki
Valokaari 8, Suutarila, 00750 Helsinki #10811231
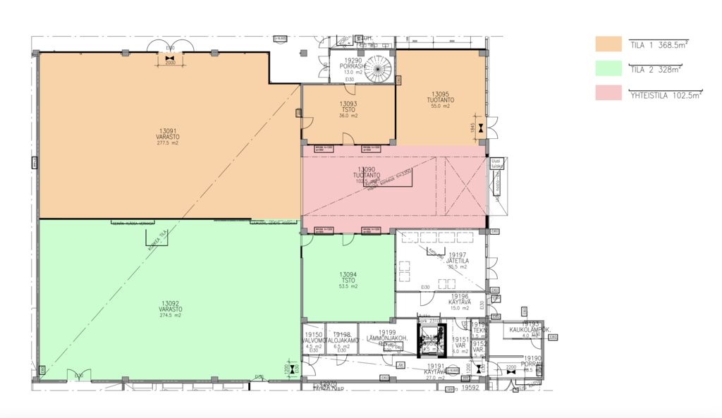
Varastotilaa Helsingin Suutarilassa.
Vuokrattavana siisti 451 m² tuotanto-/varastotila jossa jaettu sisäänkäynti nosto-ovella. Sisäänajossa korkeus 3,35m, varasto-osa n. 7m korkeaa tilaa. Pohjakuvassa tila 1. Kiinteistössä toimii laadukas lounasravintola ja neuvottelutilojen käyttö sisältyy vuokraan.
Valokaari 8 on varasto- ja tuotantokiinteistö, joka sijaitsee lähellä Kehä III:sta Suutarilan teollisuusalueella. Kiinteistö on peruskorjattu ja kiinteistössä on lastauslaituri sekä jäteasema. Alueella on monipuolisesti erilaisia palveluja ja hyvät kulkuyhteydet. Kiinteistön pihalla on hyvin pysäköintitilaa.
Kysy lisää numerosta 044 723 4700 tai info@bref.fi. Palvelumme on tilanhakijoille ilmainen.
Bureau Real Estate Finland Oy
Lars Sonckin kaari 16, 02600 Espoo
Näytä puhelinnumero
0447234700
Bureau Real Estate Finland Oy
https://www.bref.fi