Vuokrataan toimistotilat - Oulu
Elektroniikkatie 8, Linnanmaa, 90590 Oulu #10811221
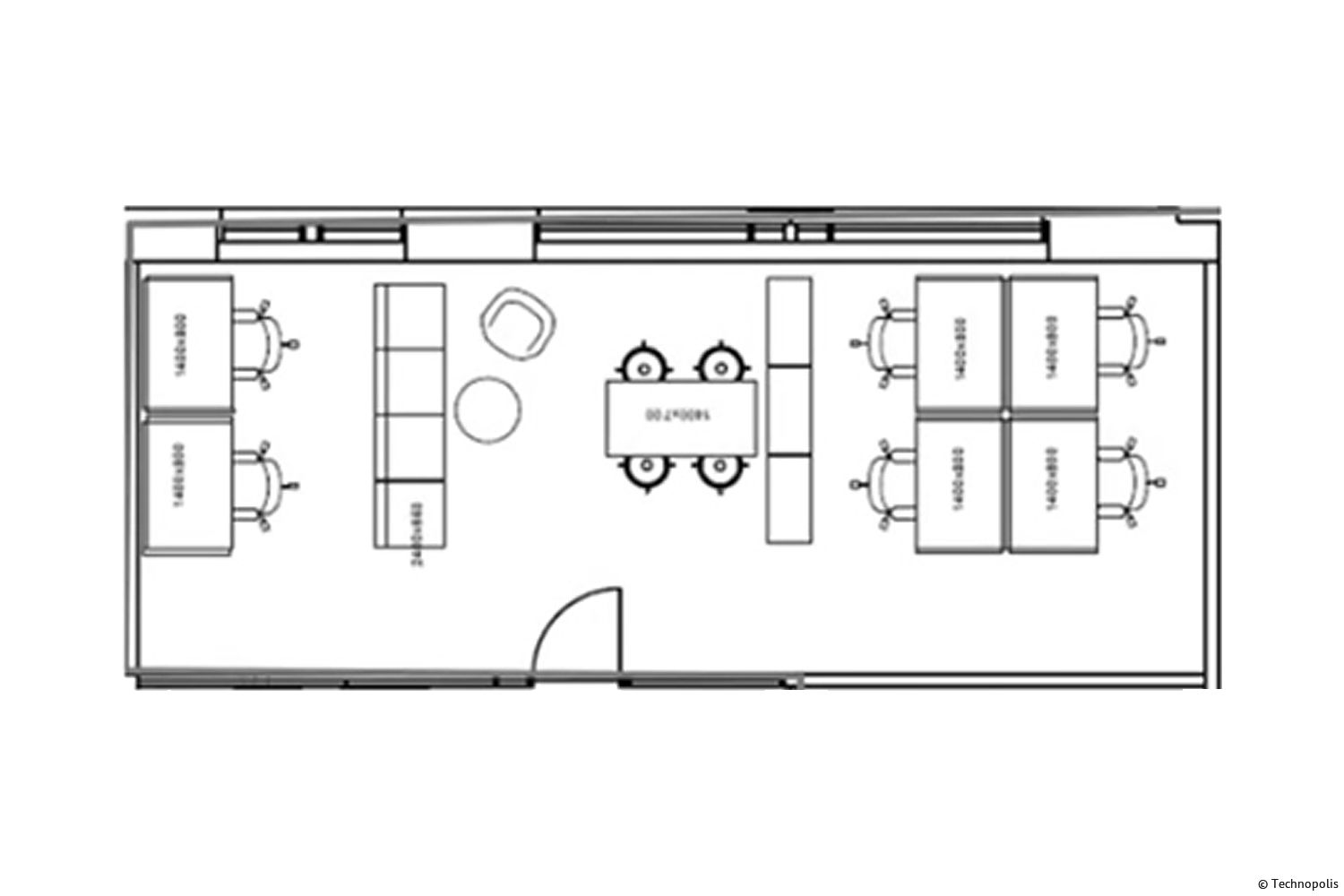
Technopolis Linnanmaan kampukselta vuokrattavissa siisti toisen kerroksen toimistotila, johon saa työpisteet noin 3–5 henkilölle. Tilan edessä on oma odotustila, johon voi ohjata vieraat odottamaan. Ilmoitettu neliömäärä sisältää jyvityksen kiinteistön yhteisistä tiloista.
Kiinteistön pääaulassa toimii vieraita opastava asiakaspalvelupiste. Aulan yhteydessä on myös lounasravintola, jossa on tarjolla maittavaa lounasta aina maanantaista perjantaihin. Lisäksi ravintolassa on itsepalvelukioski, josta voi ostaa pientä purtavaa mukaan. Kampukselta löytyy kattavasti erilaisia kokoustiloja, kuten lounaskabinetteja, koulutustiloja sekä auditorio.
Linnanmaan kampus sijaitsee Oulun yliopiston vieressä, vain noin 10 minuutin ajomatkan päässä Oulun keskustasta. Myös julkiset liikenneyhteydet toimivat hyvin, ja lähellä sijaitsee kauppakeskus Oulun Ideapark. Rakennuksen piha-alueella on edullisia pysäköintipaikkoja asiakkaiden käyttöön, ja vieraiden on mahdollista käyttää maksuttomia vieraspysäköintipaikkoja pääsisäänkäynnin edessä.
Technopolis
Elektroniikkatie 8 FIN-90590 Oulu
Näytä puhelinnumero
046 712 0000
Sanna Autio
Näytä puhelinnumero
040 350 3886
Myynti Technopolis Oulu
Technopolis on työympäristöjen asiantuntija. Tarjoamme joustavia ja tehokkaita toimitiloja sekä niihin liittyviä palveluita. Hoidamme kaiken työtilojen suunnittelusta sekä aula- ja kokouspalveluista ravintoloihin ja siivoukseen. Asiakaskokemus ja sen kehittäminen ovat toimintamme ytimessä. Meillä on 14 kampusta, joissa toimii 1200 asiakasyritystä ja niiden 35 000 työntekijää neljässä maassa Euroopassa.
https://technopolisglobal.com/fi