Vuokrataan toimistotilat - Oulu
Torikatu 21-23, Keskusta, 90100 Oulu #10811158
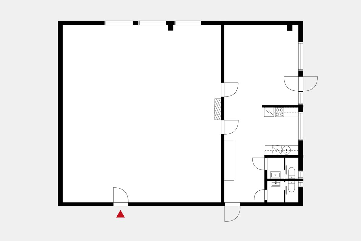
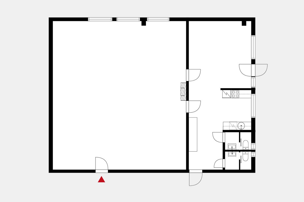
Oulun ydinkeskustassa Torikadulla vuokrattavana toimistotila 155 m2 6. kerroksessa. Tilassa kaksi wc:tä ja keittiö. Vuokraan sisältyy lämpö ja vesi. Sähkö laskutetaan erikseen. Mahdollisuus vuokrata autopaikkoja.
Lisätietoja numerosta 020 7290 710. Lisää kohteita osoitteessa www.premises.fi.
Energialuokka DKerros: 6
Osoite
Torikatu 21-23, 90100 Oulu
Tilatyyppi
Toimistotilaa
155 m2
Kulkuyhteydet
Kohde sijaitsee hyvien kulkuyhteyksien varrella.
Ota yhteyttä
CRE PREMISES
Puh. Näytä puhelinnumero 020 7290 710
Vantaankoskentie 14
01670 VANTAA
Pyydä lisätietoa
