Vuokrataan - Helsinki
Ormuspellontie 2, 00700 Helsinki #10811082
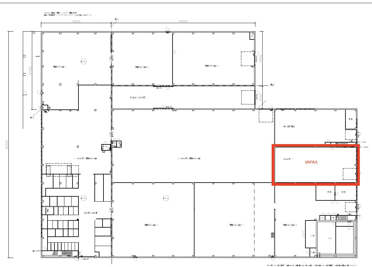
Vuokralle tarjotaan Malmilta varastotilaa noin 200 m2. Pihatilaa on. Maantasainen nosto-ovi. Vesi ja sähkö erilliskorvaus. Soveltuu varasto/kevyeen tuotantoon. Ei sovellu autokorjaamoksi/autopesulaksi.
Osoite
Ormuspellontie 2, 00700 Helsinki
Vuokra
2550.00 e/kk
Vapautuu
Kysy
Huoneiden lukumäärä
1
Energiatehokkuusluokka
Ei lain edellyttämää energiatodistusta
Ota yhteyttä
RHG Real Estate
Hämeenkatu 2 B20, 20500 Turku
Näytä puhelinnumero
020 734 4020
Risto Taimela
Näytä puhelinnumero
0400 674 900
Pyydä lisätietoa
