Vuokrataan toimistotilat - Helsinki
Työpajankatu 13, Kalasatama, 00580 Helsinki #10811063
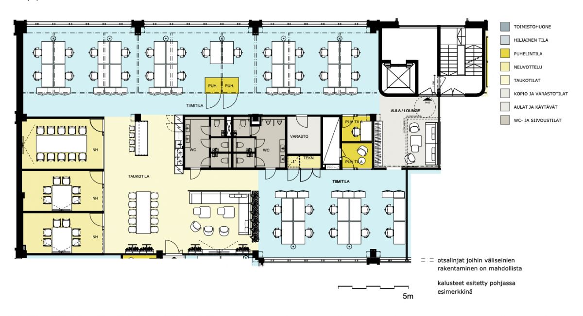
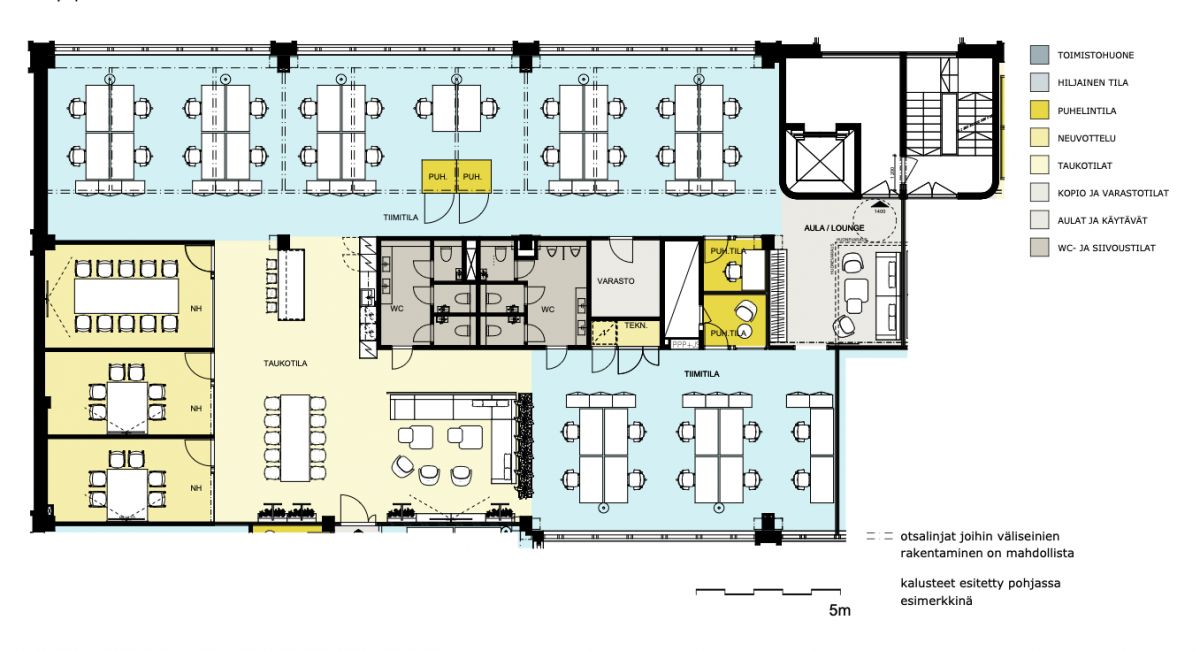
Vuokrataan toimistotilaa loistavalla sijainnilla Kalasataman metro-aseman ja kauppakeskus Redin vierestä. Upeassa avarassa ja valoisassa tilassa erikokoisia työskentelytiloja ja neuvottelutiloja. Tilaan mahdollista tehdä muutoksia seuraavan vuokralaisen tarpeiden mukaan.
Tässä kohteessa on runsaasti vuokralaisten yhteiskäytössä olevia tiloja, kuten suuri neuvottelutila kokonaisuus ja work-lounge alueita, sekä auditorio, kuntosali, liikuntatilat ja sosiaali- ja saunatilat.
Kalasataman Työpaja avasi ovensa uusille vuokralaisille kevät-kesällä 2018, kun kiinteistön laaja peruskorjaus valmistui. Toimistotilat muutettiin avariksi, nykyaikaisiksi monitilatoimistoiksi. Toimistotilojen suunnittelussa on panostettu nykyvaatimusten mukaiseen muunneltavuuteen, viihtyisyyteen, tehokkuuteen ja laatuun. Kaikki yhteiskäytössä olevat neuvottelutilat, auditorio, kuntosali ja ravintola ovat saaneet uuden ilmeen. Myös talotekniikka ja hissit on uusittu samassa yhteydessä.
Autolla tavoittaa nopeasti Helsingin pääteiden verkoston tai lentoaseman. Kiinteistöllä on runsaasti autopaikkoja, joista osa on lämpimässä autohallissa, osa katetussa ulkotilassa tai pihalla. Sähköautojen latauspisteet lisätään perusparannuksen yhteydessä. Keskustaan Työpajalta matkustaa metrolla muutamassa minuutissa ja Espoon Matinkylään alle puolessa tunnissa. Sijainti ja olosuhteet kannustavat myös työmatkapyöräilyyn, jota varten on oma lukittu parkkitila ja uusitut sosiaalitilat.
Lisätietoja soita 020 730 4530 tai info@repoint.fi. Palvelumme on tilanhakijalle ilmainen.
Repoint Toimitilat Oy
Itälahdenkatu 22 B, 00210 Helsinki
Näytä puhelinnumero
020 730 4530
Lisätietoja soita Näytä puhelinnumero 020 730 4530 tai info@repoint.fi
https://repoint.fi/