Vuokrataan toimistotilat - Helsinki
Itämerenkatu 1, Ruoholahti, 00180 Helsinki #10811039
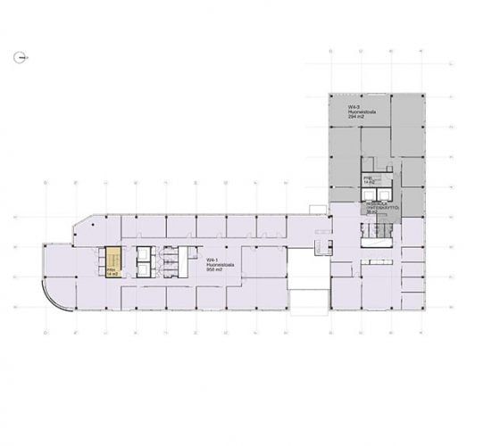
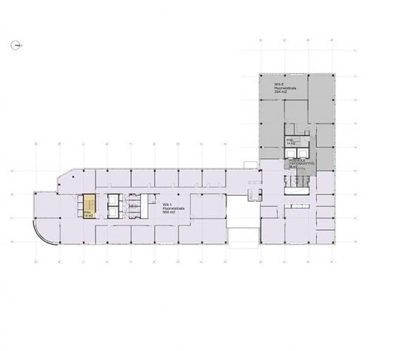
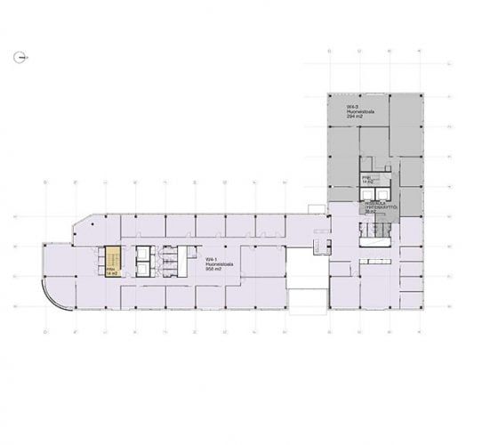
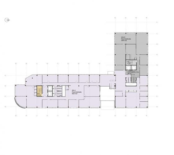
Tämä neljännen kerroksen tila tarjoaa mahdollisuuksia suuremmallekin porukalle. Nämä avarat tilat mukautuvat tarpeen mukaan luoden tilaa rauhalliselle työskentelylle, asiakastapaamisille sekä työtovereiden kohtaamisille. Siistit tilat palvelevat niissä työskentelevien henkilöiden hyvinvointia ja auttavat tekemään toimistolle saapumisesta miellyttävän kokemuksen.
Ruoholahden Westport on erinomaisella sijainnilla, vilkkaan Länsisataman läheisyydessä. Tämä Helsingin läntinen portti maailmalle on vuonna 1998 valmistunut moderni liikerakennus, jonka tilat ja palvelut vastaavat nykypäivän vaatimuksia. Kiinteistön valoisat toimistotilat mukautuvat käyttäjän toiveita kuunnellen avotoimistoksi tai yksityisyyttä antaviksi työhuoneiksi.
Westportista löytyy ravintola Gresa, josta mukaan voi napata lounaan ja tilata kokoustarjoilut. Rakennuksesta löytyy niin ikään useita neuvotteluhuoneita, uusi 20 hengen studio sekä avarat kokoustilat. Näiden lisäksi rakennuksessa vuokralaisia palvelee kuntosali ja saunatilat.
Croisette on uusi ja innovatiivinen toimitilojen välitysyritys Suomessa. Meillä on vahva halu auttaa teitä löytämään paras toimitilaratkaisu mahdollisimman vaivattomasti.
Huomaathan, että kaikki vapaat ja vapautuvat tilat ovat kauttamme saatavilla. Osa tiloista on hiljaisessa markkinoinnissa, mutta ottamalla meihin yhteyttä saat nekin tietoosi.
Palvelumme on tilanhakijoille täysin maksutonta.
Hissi
Croisette Real Estate Partner
Erottajankatu 5 A 6, 00130 Helsinki
Näytä puhelinnumero
+358 400 585 857
Croisette Vuokraus
Näytä puhelinnumero
+358400585857
