Vuokrataan toimistotilat - Helsinki
Kaivokatu, Kaivokatu 10 B, Keskusta, 00100 Helsinki #10811011
Helsingin ydinkeskustassa erillisjäähdytyksellä varustettua siistikuntoista muuntojoustavaa kombikonttoritilaa. Tilat muokataan vuokralaisen tarpeita vastaaviksi. Ota yhteyttä ja sovi esittely, palvelumme on tilanhakijoille ilmainen.
Osoite
Kaivokatu 10 B, 00100 Helsinki
Tilatyyppi
Toimistotilaa
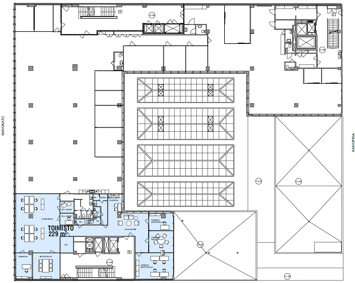
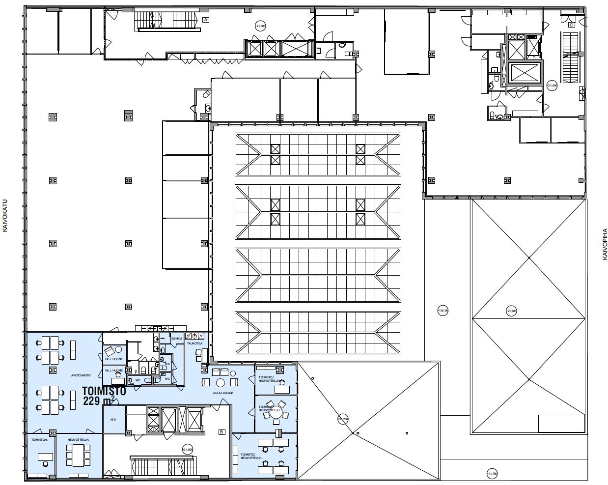
229 m2
Tilajako
Jaettavissa
Pohjapiirros
Sijainti
Keskusta, Rautatientoria vastapäätä.
Pysäköinti
Pysäköintihallit
Kulkuyhteydet
Kaikki julkiset liikennevälineet.
Vapautuu
Heti
Kerros
6 / 8
Energiatehokkuusluokka
Ei lain edellyttämää energiatodistusta
Jaettavissa
Hissi
Ota yhteyttä
Senaatin Notariaatti Oy LKV
Lämmittäjänkatu 4 A
FIN-00880 Helsinki
Tel:
Näytä puhelinnumero
+358 9 7745 100
Pyydä lisätietoa
