Vuokrataan toimistotilat - Helsinki
Pohjoisesplanadi 37, Kluuvi, 00100 Helsinki #10810941
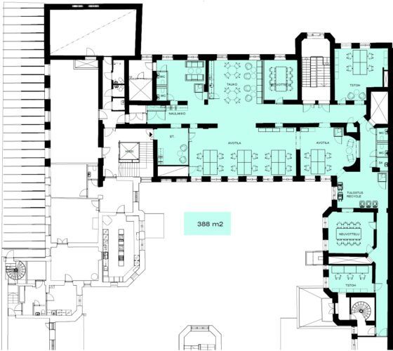
Tarjolla on tilava ja muunneltava 388 m² toimistotila Helsingin ydinkeskustan arvokiinteistössä Pohjoisesplanadilla. Tila sijaitsee kiinteistön neljännessä kerroksessa ja on mahdollista vuokrata kokonaisena tai jakaa kahdelle eri käyttäjälle!
Osoite
Pohjoisesplanadi 37, 00100 Helsinki
Tilatyyppi
Toimistotilaa
165 - 388 m2
Tilajako
Jaettavissa
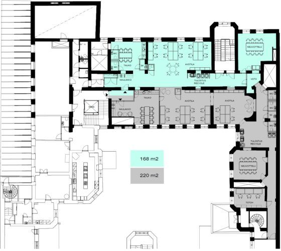
Koko tila 388m2, jaettavissa kahdelle käyttäjälle 168m2 / 220m2
Pohjapiirros
Vuokra
Hintatiedot pyydettäessä!
Vuokraan sisältyy lämpö
Kiinteistö
Tilat ovat vapautumassa 1.6.2025 ja nyt etsitään seuraavaa / seuraavia toimijoita tiloihin!
Tilat sijaitsevat rakennuksen neljännessä kerroksessa ja kokonaispinta-ala kerrokselle on 388m2. Tilat tarjoaa joustavuutta ja ovat mahdollista jakaa kahdelle käyttäjälle jolloin tilat jakautuvat 168m2 / 220m2 kokoisiksi tiloiksi.
Tilojen ominaisuudet:
+ Erinomainen pohjaratkaisu, joka mahdollistaa monipuolisen tilankäytön
+ Valoisa ja moderni työympäristö historiallisessa arvokiinteistössä
+ Sijainti keskustan sykkeessä, loistavien palveluiden ja kulkuyhteyksien äärellä
Kiinteistössä on kattavat nykyaikaiset toimistopalvelut, ja Pohjoisesplanadin ainutlaatuinen sijainti tekee tästä toimitilasta houkuttelevan vaihtoehdon niin pienille kuin suuremmillekin yrityksille.
Ota yhteyttä ja tule tutustumaan tähän huippusijainnilla sijaitsevaan toimitilaan!
Tilat sijaitsevat rakennuksen neljännessä kerroksessa ja kokonaispinta-ala kerrokselle on 388m2. Tilat tarjoaa joustavuutta ja ovat mahdollista jakaa kahdelle käyttäjälle jolloin tilat jakautuvat 168m2 / 220m2 kokoisiksi tiloiksi.
Tilojen ominaisuudet:
+ Erinomainen pohjaratkaisu, joka mahdollistaa monipuolisen tilankäytön
+ Valoisa ja moderni työympäristö historiallisessa arvokiinteistössä
+ Sijainti keskustan sykkeessä, loistavien palveluiden ja kulkuyhteyksien äärellä
Kiinteistössä on kattavat nykyaikaiset toimistopalvelut, ja Pohjoisesplanadin ainutlaatuinen sijainti tekee tästä toimitilasta houkuttelevan vaihtoehdon niin pienille kuin suuremmillekin yrityksille.
Ota yhteyttä ja tule tutustumaan tähän huippusijainnilla sijaitsevaan toimitilaan!
Sijainti
Pohjoisesplanadi 37 on haluttu kohde liike-elämän, hallinnon ja kulttuurin kohtauspisteessä Helsingin ydinkeskustassa. Vilkas Esplanadi on parasta mahdollista ympäristöä menestyvälle yritykselle. Kaikki keskusta-alueen monipuoliset palvelut ovat lähettyvillä.
Vapautuu
Heti
Kerros
4
Energiatehokkuusluokka
Ei lain edellyttämää energiatodistusta
Näkyvällä paikalla
Jaettavissa
Ota yhteyttä
Arvo Premises Oy
Joakim Kukkonen
Osakas, Toimitilavälittäjä
Näytä puhelinnumero
040 555 8106
Seppo Pakarinen
Osakas, Kiinteistönvälittäjä. LKV, YKV, AKA
Näytä puhelinnumero
040-703 8000
Pyydä lisätietoa
