Vuokrataan toimistotilat - Oulu
Yrttipellontie 6, Peltola, 90230 Oulu #10810936
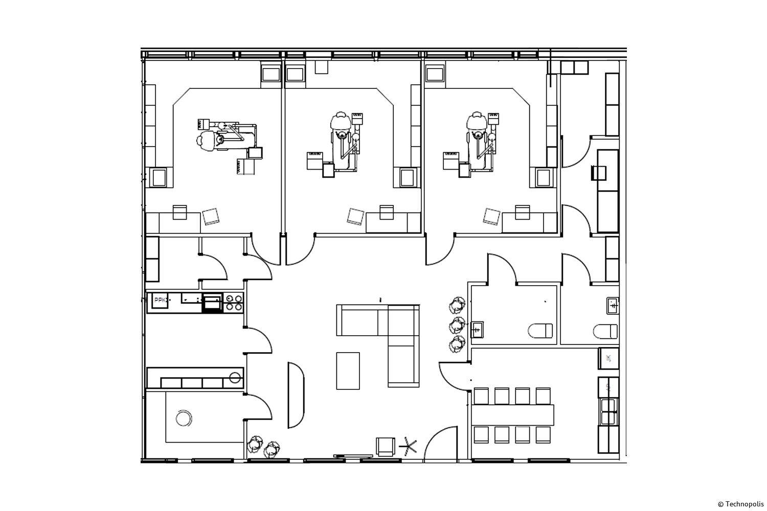
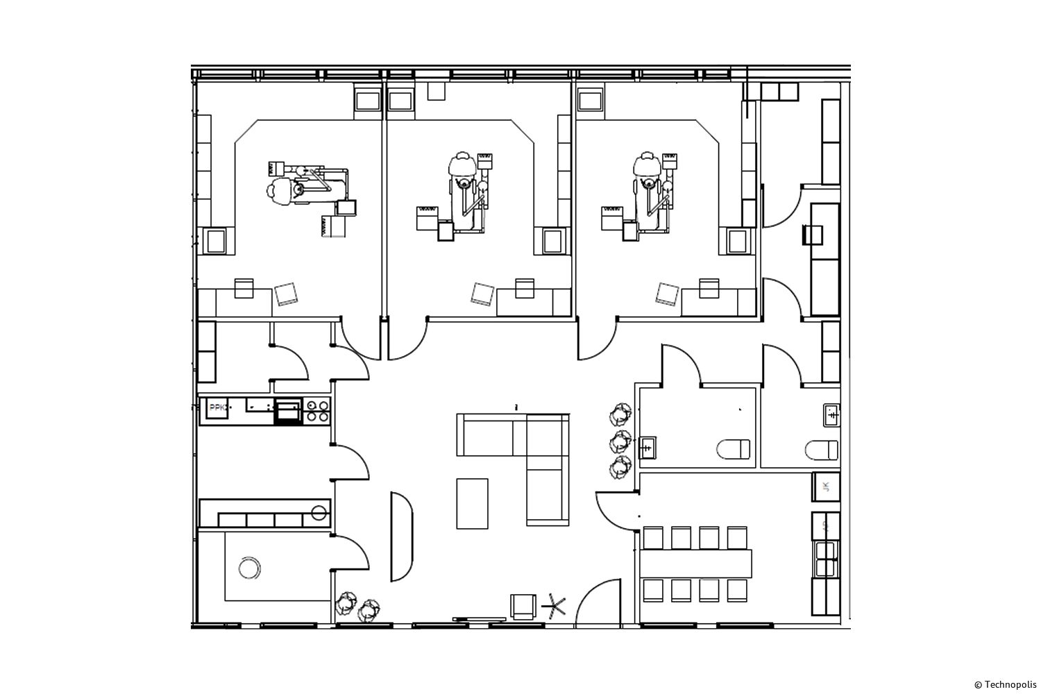
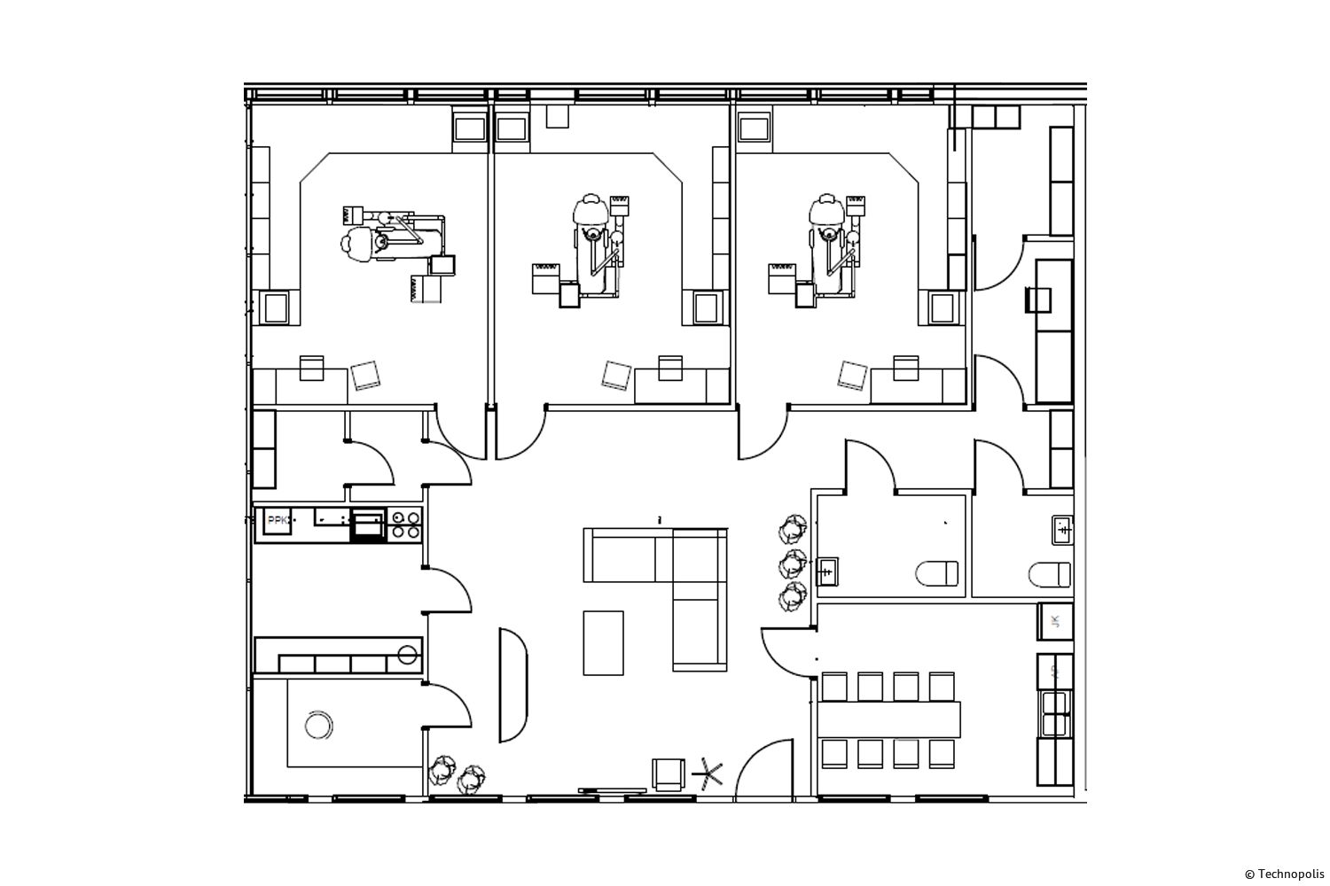
Vuokrattavana muuttovalmis ja toimiva liiketila esimerkiksi terveysalan yritykselle Technopolis Peltolassa, 1. kerroksessa, aivan aulapalvelun vieressä! Tämä aiemmin hammaslääkärikeskuksena toiminut tila soveltuu erinomaisesti esimerkiksi hammaslääkäri-, fysioterapia-, hieronta-, eläinlääkäri- tai lääkäriasemakäyttöön. Tilasta löytyy 3–5 hoitohuonetta, röntgenhuone, taukotila keittiöineen, sosiaalitila sekä wc-tilat. Technopolis tarjoaa vuokralaisilleen laadukkaat ja kattavat palvelut, jotka tukevat sujuvaa arkea. Erinomainen sijainti ja valmiit puitteet tekevät tästä tilasta loistavan ratkaisun terveysalan toimijalle – varaa esittely ja tutustu tarkemmin!
Technopolis
Elektroniikkatie 8 FIN-90590 Oulu
Näytä puhelinnumero
046 712 0000
Maija Väyrynen
Näytä puhelinnumero
040 584 4747
Myynti Technopolis Oulu
Technopolis on työympäristöjen asiantuntija. Tarjoamme joustavia ja tehokkaita toimitiloja sekä niihin liittyviä palveluita. Hoidamme kaiken työtilojen suunnittelusta sekä aula- ja kokouspalveluista ravintoloihin ja siivoukseen. Asiakaskokemus ja sen kehittäminen ovat toimintamme ytimessä. Meillä on 14 kampusta, joissa toimii 1200 asiakasyritystä ja niiden 35 000 työntekijää neljässä maassa Euroopassa.
https://technopolisglobal.com/fi