Vuokrataan toimistotilat - Helsinki
KOy Gaselli, Mikonkatu 4, Kluuvi, 00100 Helsinki #10810895
Tervetuloa tutustumaan tähän upeasti remontoituun ja valoisan neljännen kerroksen toimistotilaan, joka sijaitsee arvostetussa Gaselli-korttelissa Helsingin ydinkeskustassa. Tilaan on käynti kauniin Gasellin kauppakäytävän kautta.
Osoite
Mikonkatu 4, 00100 Helsinki
Tilatyyppi
Toimistotilaa
169 m2
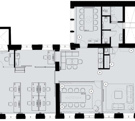
Pohjapiirros
Vuokra
Hintatiedot pyydettäessä!
Vuokraan sisältyy lämpö
Kiinteistö
Kiinteistö Oy Gaselli on arkkitehti K.A. Wreden suunnittelema ja Julius Tallbergin rakennuttama arvokiinteistö, joka valmistui vuonna 1892. Tämä historiallisesti arvokas rakennus on juuri valmistuneen peruskorjauksen jälkeen saanut upeat, nykyaikaiset toimistotilat, joissa on huomioitu rakennuksen ainutlaatuinen arkkitehtuuri ja arvokas historia.
Tiedot:
+ Kerros: 4/7
+ Pinta-ala: 170 m²
+ Tilaratkaisu: Joustavat ja tehokkaat tilaratkaisut, jotka mahdollistavat monitilaympäristön luomisen
Gaselli-kortteli tarjoaa korkeatasoisia toimistotiloja erikokoisille yrityksille. Tämä tila sopii erityisesti yrityksille, jotka arvostavat laadukkaita ratkaisuja sekä historiallista miljöötä yhdistettynä moderniin teknologiaan ja tehokkuuteen.
Ota yhteyttä ja varaa esittely!
Tiedot:
+ Kerros: 4/7
+ Pinta-ala: 170 m²
+ Tilaratkaisu: Joustavat ja tehokkaat tilaratkaisut, jotka mahdollistavat monitilaympäristön luomisen
Gaselli-kortteli tarjoaa korkeatasoisia toimistotiloja erikokoisille yrityksille. Tämä tila sopii erityisesti yrityksille, jotka arvostavat laadukkaita ratkaisuja sekä historiallista miljöötä yhdistettynä moderniin teknologiaan ja tehokkuuteen.
Ota yhteyttä ja varaa esittely!
Sijainti
Helsingin vilkkaimmilla paikoilla ydin keskustassa.
Pysäköinti
Lähin autoilijoita palveleva pysäköintihalli sijaitsee Kluuvissa, sisäänajo Kaisaniemestä tai Fabianinkadulta. Julkisen liikenteen yhteydet ovat vain lyhyen kävelymatkan päässä.
Vapautuu
2/2025
Näkyvällä paikalla
Ota yhteyttä
Arvo Premises Oy
Joakim Kukkonen
Osakas, Toimitilavälittäjä
Näytä puhelinnumero
040 555 8106
Seppo Pakarinen
Osakas, Kiinteistönvälittäjä. LKV, YKV, AKA
Näytä puhelinnumero
040-703 8000
Pyydä lisätietoa
