Vuokrataan liiketilat - Pori
Kuninkaanlahdenkatu 7, Aittaluoto, 28100 Pori #10810843
Siistiä liiketilaa Porissa
Osoite
Kuninkaanlahdenkatu 7, 28100 Pori
Tilatyyppi
Liiketilaa
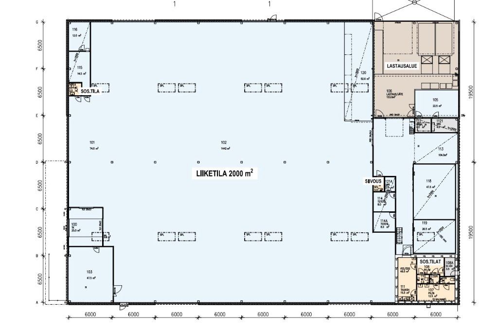
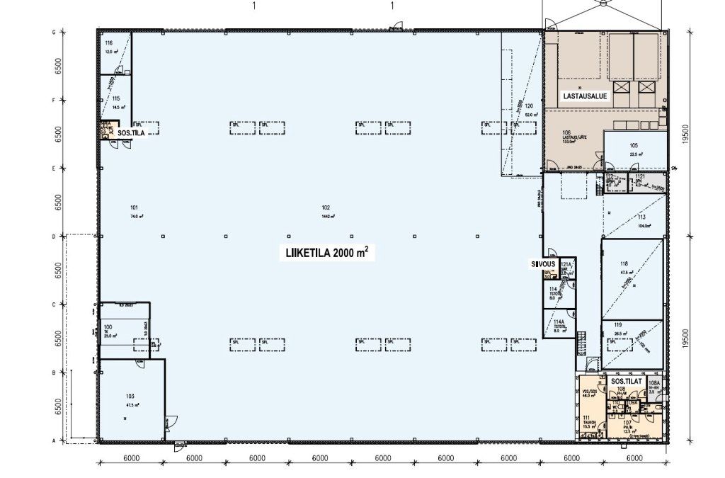
914 m2
Pysäköinti
On
Muuta
Heti vapaana olevaa siistikuntoista liiketilaa Porista, Aittaluodon kaupunginosasta. Liiketila on Porin keskustan edustalla, Kokemäenjoen etelärannalla.
Tilakokonaisuudesta löytyy 3 metriä korkean myymälätilan lisäksi hyvät sosiaalitilat, varastotilaa sekä lastausalue,
joka helpottaa tavaraliikennettä.
Suuren pysäköintialueen ja sijainnin vuoksi kiinteistöön on helppo tulla omalla autolla sekä julkisilla liikennevälineillä.
Tervetuloa tutustumaan, varaathan välittäjältä oman esittelyaikasi. Voit kysyä meiltä myös muita sopivia vaihtoehtoja, kauttamme löydät juuri Teidän tarpeisiinne sopivat tilat.
Palvelumme on tilanhakijalle veloitukseton!
Tilakokonaisuudesta löytyy 3 metriä korkean myymälätilan lisäksi hyvät sosiaalitilat, varastotilaa sekä lastausalue,
joka helpottaa tavaraliikennettä.
Suuren pysäköintialueen ja sijainnin vuoksi kiinteistöön on helppo tulla omalla autolla sekä julkisilla liikennevälineillä.
Tervetuloa tutustumaan, varaathan välittäjältä oman esittelyaikasi. Voit kysyä meiltä myös muita sopivia vaihtoehtoja, kauttamme löydät juuri Teidän tarpeisiinne sopivat tilat.
Palvelumme on tilanhakijalle veloitukseton!
Vapautuu
Kysy
Kerros
Katutaso
Ota yhteyttä
Tuloskiinteistöt Oy
Kauppiaskatu 11 C 23, 20100 Turku
Näytä puhelinnumero
(02) 274 3500
Ritva Nuotio
Commercial Real Estate Advisor LKV, KED
Näytä puhelinnumero
+358 50 5261 744
Karoliina Eklund
Leasing Support Specialist
Näytä puhelinnumero
+358 40 017 8999
Pyydä lisätietoa
