Myydään toimistotilat, varastotilat, muut tilat - Jyväskylä
Polttolinja 37, 40520 Jyväskylä #10810829
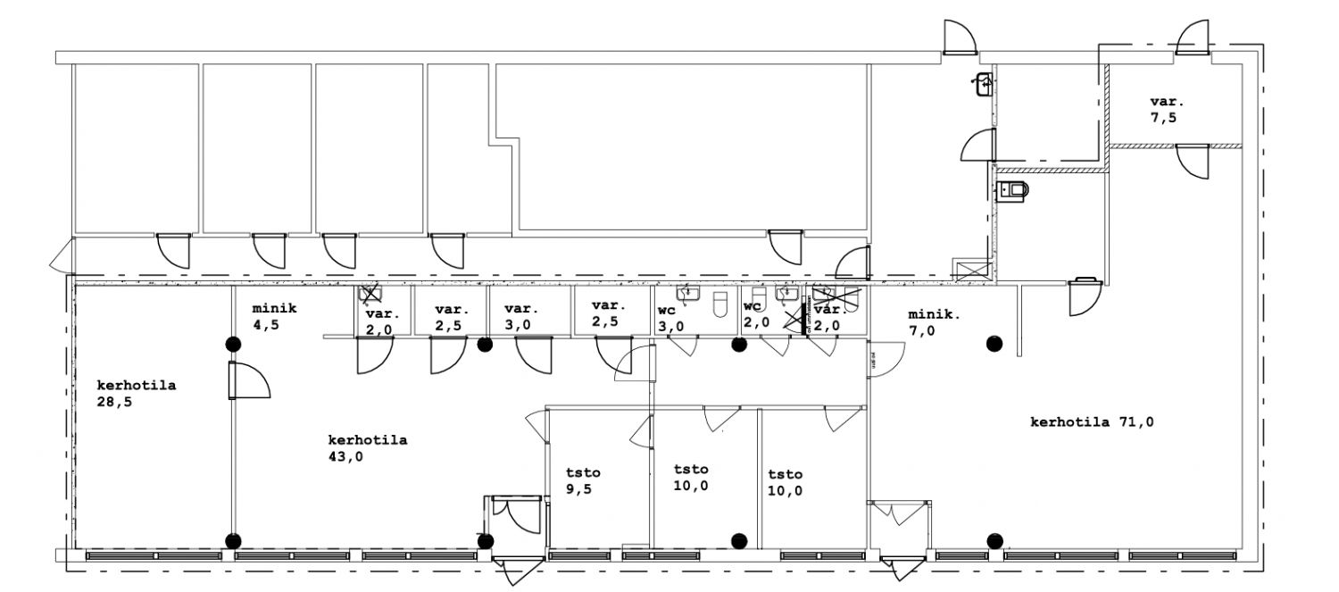
Myydään monikäyttöinen toimisto - / kokoontumistila Kuokkalan Polttolinjalta. Tila koostuu kahdesta isommasta avotilasta, neljästä toimisto / neuvotteluhuoneesta sekä WC- ja varastotiloista. Molemmissa avotiloissa on lisäksi keittokomerot sekä omat sisäänkäynnit.
Sijainti Kuokkalan keskustassa Polttolinjalla, jossa lähellä paljon palveluita.
Pysäköintitilaa saatavilla kiinteistön edustalla, jossa lämmitystolpallisia autopaikkoja. Muuta pysäköintitilaa myös Polttolinjalla kadun varressa, jossa paljon kiekkopaikkoja.
Lisätiedot ja näytöt:
Henri Kumpulainen, Puh: 040 864 3631, s-posti: henri.kumpulainen@aveon.fi
Miska Puustinen, Puh: 045 354 6836, s-posti: miska.puustinen@aveon.fi
Katutasossa
Aveon Real Estate Oy
Kauppakatu 18 C 26, 40100 Jyväskylä
Henri Kumpulainen
Puh.
Näytä puhelinnumero
040 864 3631
henri.kumpulainen@aveon.fi
Miska Puustinen
Puh:
Näytä puhelinnumero
045 354 6836
miska.puustinen@aveon.fi
Olemme kiinteistöliiketoiminnan asiantuntija, joka toimii yrittäjämäisesti neuvonantajana kiinteistökaupoissa, toimitilavälittämisessä sekä kiinteistökehityksessä.
Asiakkaitamme ovat kotimaiset ja ulkomaiset kiinteistönomistajat, -sijoittajat sekä tilojen käyttäjät kaikkialla Suomessa.
