Vuokrataan toimistotilat - Helsinki
Hermannin rantatie 8, Hermanni, 00580 Helsinki #10810817
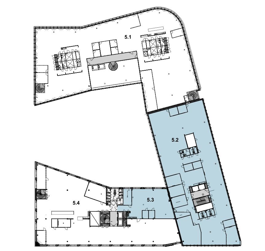
Vuokrattavana valoisaa, modernia, avaraa ja korkeaa avotoimistotilaa.
Osoite
Hermannin rantatie 8, 00580 Helsinki
Tilatyyppi
Toimistotilaa
1055 m2
Tilajako
Jaettavissa
Kiinteistö
Vuokrattavana valoisaa, modernia, avaraa ja korkeaa avotoimistotilaa. Tilassa muutama toimistohuone sekä neuvottelutila. Tilaa voidaan joustavasti muuttaa sopivammaksi asiakkaan tarpeisiin.
Sijainti
Kalasatama, Helsinki
Pysäköinti
Mahdollisuus pysäköintipaikkoihin.
Palvelut
-Aulapalvelu
-Lounasravintola
-Vuokrattavia neuvottelutiloja
-Kuntosali
-Lounasravintola
-Vuokrattavia neuvottelutiloja
-Kuntosali
Kulkuyhteydet
-Metro
-Bussi
-Oma auto
-Bussi
-Oma auto
Vapautuu
Heti
Kerros
5
Energiatehokkuusluokka
Ei lain edellyttämää energiatodistusta
Näkyvällä paikalla
Jaettavissa
Hissi
Ota yhteyttä
REALIUM OY LKV
Tammasaarenkatu 1, 00180 Helsinki
Vaihde:
Näytä puhelinnumero
010 326 346
Tuomo Mäkelä
tuomo.makela@realium.fi
p.
Näytä puhelinnumero
044 050 1158
Joel Keto
joel.keto@realium.fi
p.
Näytä puhelinnumero
045 317 0330
KAIKKI TILAVAIHTOEHDOT KERRALLA!
SOITA - MEILAA JA TILAA NÄYTTÖ!
Ilmainen palvelu tilanhakijoille.
Kartoitamme parhaat tilavaihtoehdot.
Kaikki kohteet eivät ole netissä.
Pyydä lisätietoa
