Vuokrataan toimistotilat - Helsinki
Työpajankatu 10, Kalasatama, 00580 Helsinki #10810801
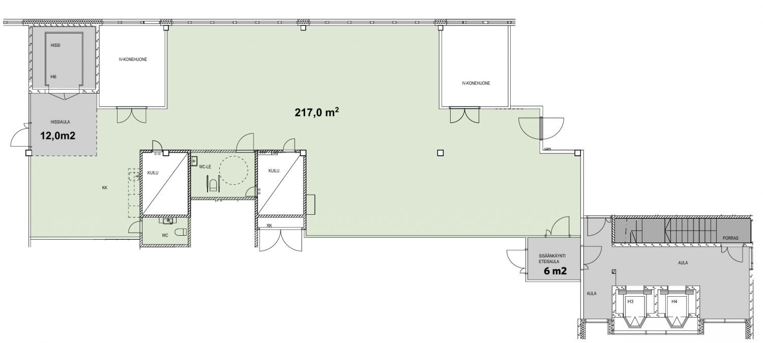
Vuokrattavana siistiä toimistotilaa hyvällä sijainnilla Helsingin Kalasatamassa.
Osoite
Työpajankatu 10, 00580 Helsinki
Tilatyyppi
Toimistotilaa
224 m2
Tilajako
Jaettavissa
Laajennettavissa 1161m2
Kiinteistö
Vuokrattavana siistiä toimistotilaa hyvällä sijainnilla Helsingin Kalasatamassa. Toimistossa on avotila, oma keittiö sekä wc-tila.
Sijainti
Helsingin Yrittäjätalo, Kalasatama, Helsinki
Palvelut
-Lounasravintola
-Aulapalvelu
-Neuvottelutilat
-Aulapalvelu
-Neuvottelutilat
Kulkuyhteydet
-Bussi
-Metro
-Raitiovaunu
-Oma auto
-Metro
-Raitiovaunu
-Oma auto
Vapautuu
Heti
Kerros
6
Energiatehokkuusluokka
Ei lain edellyttämää energiatodistusta
Näkyvällä paikalla
Jaettavissa
Hissi
Ota yhteyttä
REALIUM OY LKV
Tammasaarenkatu 1, 00180 Helsinki
Vaihde:
Näytä puhelinnumero
010 326 346
Tuomo Mäkelä
tuomo.makela@realium.fi
p.
Näytä puhelinnumero
044 050 1158
Joel Keto
joel.keto@realium.fi
p.
Näytä puhelinnumero
045 317 0330
KAIKKI TILAVAIHTOEHDOT KERRALLA!
SOITA - MEILAA JA TILAA NÄYTTÖ!
Ilmainen palvelu tilanhakijoille.
Kartoitamme parhaat tilavaihtoehdot.
Kaikki kohteet eivät ole netissä.
Pyydä lisätietoa
