Vuokrataan toimistotilat - Jyväskylä
Alasinkatu 1-3, 40320 Jyväskylä #10810800
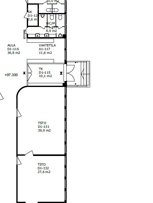
Vuokrataan n. 67,5m2 jäähdytettyä toimistotilaa erinomaiselta paikalta Seppälästä Gummerus-talosta. Tila koostuu kahdesta toimistohuoneesta, joiden koot ovat n. 40m2 ja 27,5m2, joissa myös ne yhdistävä väliovi (ks. pohjakuva). Toimistohuoneiden läheisyydessä yhteiskäyttöiset WC-tilat. Vuokralaisten käytössä on lisäksi yhteiskäyttöiset sosiaalitilat sekä neuvotteluhuone. Tila on heti vapaana.
Gummerus-talo sijaitsee erinomaisella paikalla suositulla Seppälän alueella, hyvien kulkuyhteyksien varrella. Alueella on runsaasti palveluita, vieressä sijaitsee mm. Kauppakeskus Seppä. Kiinteistön pihassa on pysäköintitilaa niin asiakkaille kuin työntekijöillekin.
Lisätiedot ja näytöt: Henri Kumpulainen, Puh 040 864 3631, s-posti henri.kumpulainen@aveon.fi
Näkyvällä paikalla
Aveon Real Estate Oy
Kauppakatu 18 C 26, 40100 Jyväskylä
Henri Kumpulainen
Puh.
Näytä puhelinnumero
040 864 3631
henri.kumpulainen@aveon.fi
Olemme kiinteistöliiketoiminnan asiantuntija, joka toimii yrittäjämäisesti neuvonantajana kiinteistökaupoissa, toimitilavälittämisessä sekä kiinteistökehityksessä.
Asiakkaitamme ovat kotimaiset ja ulkomaiset kiinteistönomistajat, -sijoittajat sekä tilojen käyttäjät kaikkialla Suomessa.
