Vuokrataan toimistotilat - Järvenpää
Asemakatu 4, Keskusta, 04400 Järvenpää #10810775
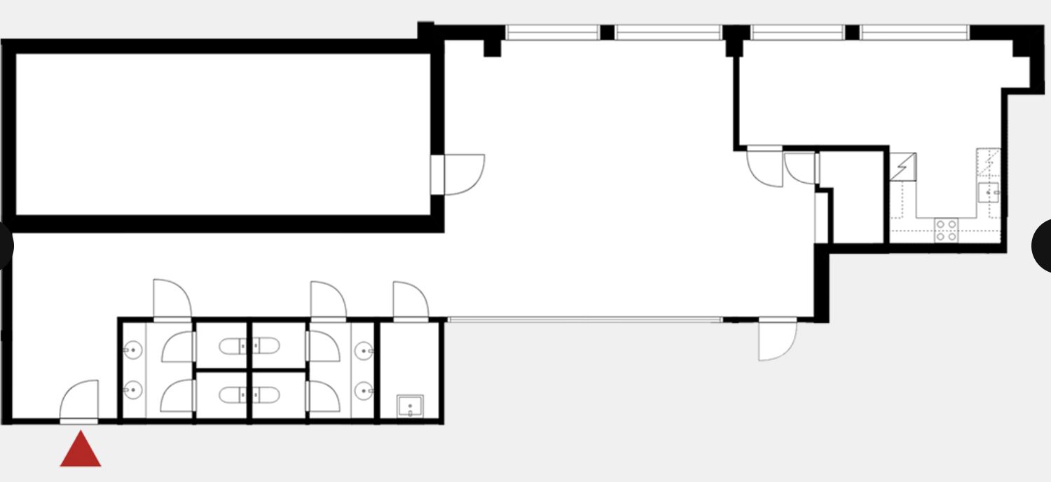
Tervetuloa tutustumaan Liikekeskus Sagan kuudennessa kerroksessa sijaitsevaan 188 m2 toimistotilaan! Tämä tila tarjoaa erinomaiset puitteet niin yksilö- kuin tiimityöskentelyyn. Tilassa on useita toimistohuoneita, jotka mahdollistavat rauhallisen työskentelyn, sekä tilava neuvotteluhuone, joka soveltuu mainiosti kokouksiin ja tiimipalavereihin. Lisäksi tilasta löytyvät sosiaalitilat, jotka tarjoavat mukavat puitteet taukojen viettoon ja virkistäytymiseen.
Lisätietoja numerosta 020 7290 710. Lisää kohteita osoitteessa www.premises.fi.
Kohteella ei ole lain edellyttämää energiatodistusta tai energialuokka ei tiedossa.Kerros: 6
CRE PREMISES
Puh. Näytä puhelinnumero 020 7290 710
Vantaankoskentie 14
01670 VANTAA
