Vuokrataan toimistotilat - Helsinki
Vanha Talvitie 11, Kalasatama, 00580 Helsinki #10810750
Toimistotilaa Helsingissä, Hermannissa.
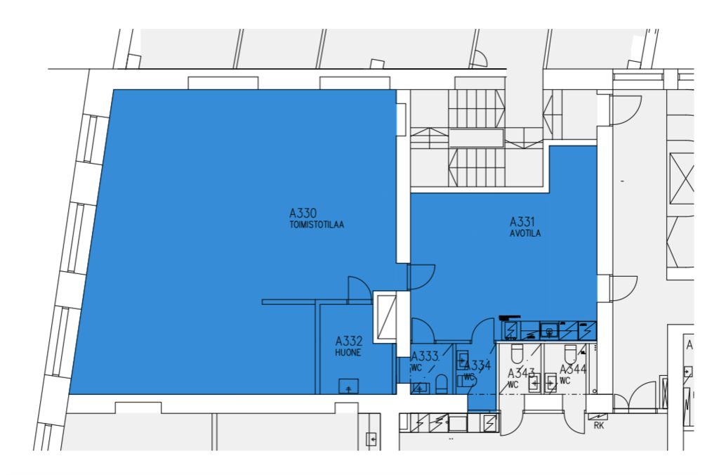
Tämä 126,5 m² toimistotila sijaitsee kiinteistön 3. kerroksessa. Tila on pääosin avotilaa. Oma keittiö ja wc. Korkea huonekorkeus.
Vanha Talvitie 11 sijaitsee Hermannissa ja se koostuu kahdesta eri osasta. Ensimmäinen osa on rakennettu vuonna 1919 ja se on arkkitehtuurillisesti upea. Sieltä löytyy myös hieman erikoisempia ja persoonallisia tilaratkaisuja. Toinen osa on valmistunut 1991. Kiinteistön tiloissa on jäähdyttävä ilmastointi.
Kysy lisää numerosta 044 723 4700 tai info@bref.fi. Palvelumme on tilanhakijoille ilmainen.
Bureau Real Estate Finland Oy
Lars Sonckin kaari 16, 02600 Espoo
Näytä puhelinnumero
0447234700
Bureau Real Estate Finland Oy
https://www.bref.fi