Vuokrataan toimistotilat - Espoo
Linnoitustie 3, Leppävaara, 02600 Espoo #10810669
Vuokrattavana valoisaa, modernia toimistotilaa.
Osoite
Linnoitustie 3, 02600 Espoo
Tilatyyppi
Toimistotilaa
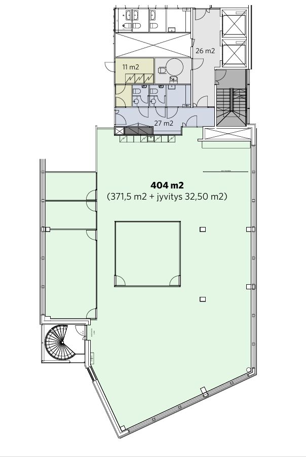
404 m2
Kiinteistö
Vuokrattavana valoisaa, modernia toimistotilaa. Toimistossa on avotilaa, tyylikäs keittiö, kokoontumistilaa ja työhuoneita. Tilaan voidaan tehdä muutoksia vuokralaisen toiveiden mukaan.
Sijainti
Etelä-Leppävaara, Espoo
Pysäköinti
Autopaikkoja vuokrattavissa kiinteistön kellarikerroksen parkkihallista sekä piha-alueelta.
Palvelut
- Aulapalvelu
- Lounasravintola
- Neuvottelutiloja
- Saunatilat
- Lounasravintola
- Neuvottelutiloja
- Saunatilat
Kulkuyhteydet
-Bussi
-Lähijuna
-Oma auto
-Lähijuna
-Oma auto
Vapautuu
Heti
Kerros
3
Energiatehokkuusluokka
Ei lain edellyttämää energiatodistusta
Näkyvällä paikalla
Hissi
Ota yhteyttä
REALIUM OY LKV
Tammasaarenkatu 1, 00180 Helsinki
Vaihde:
Näytä puhelinnumero
010 326 346
Tuomo Mäkelä
tuomo.makela@realium.fi
p.
Näytä puhelinnumero
044 050 1158
Joel Keto
joel.keto@realium.fi
p.
Näytä puhelinnumero
045 317 0330
KAIKKI TILAVAIHTOEHDOT KERRALLA!
SOITA - MEILAA JA TILAA NÄYTTÖ!
Ilmainen palvelu tilanhakijoille.
Kartoitamme parhaat tilavaihtoehdot.
Kaikki kohteet eivät ole netissä.
Pyydä lisätietoa
