Vuokrataan toimistotilat - Helsinki
Mikonkatu 2, Keskusta, 00100 Helsinki #10810579
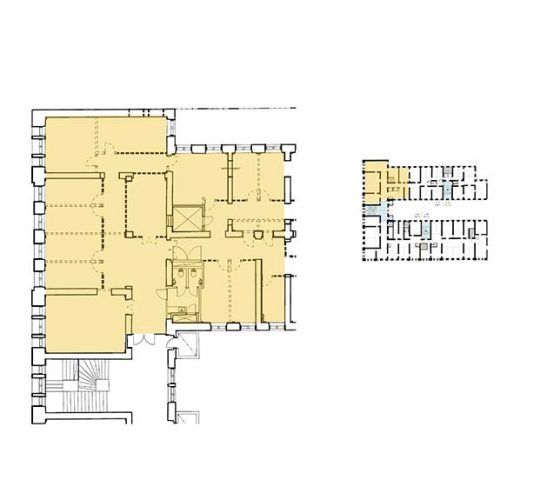
Vuokrattavana toimistotilaa viidennestä kerroksesta 268m2.
Kiinteistö Oy Mikonkatu 2 - Pohjoisesplanadi 35 sijaitsee loistavalla paikalla Helsingin ydinkeskustassa, viihtyisän Esplanadin puistokadun varrella. Tässä K.A. Wreden suunnittelemassa ja vuonna 1888 valmistuneessa arvokiinteistössä on tehty perusparannustyöt.
Parannustyöt tehdään kiinteistön arkkitehtuuria ja arvokasta historiaa kunnioittaen.
Pohjoisesplanadin ja Mikonkadun kulmaan sijoittuvassa kiinteistössä on laadukkaita toimistotiloja monen kokoisille yrityksille. Kohteessa on tehokkaat tilaratkaisut, jotka voi joustavasti hyödyntää monitilaympäristönä. Tiloissa on koneellinen ilmanvaihto ja jäähdytys.
Lähin autoilijoita palveleva pysäköintihalli sijaitsee Kluuvissa, sisäänajo Kaisaniemestä tai Fabianinkadulta. Julkisen liikenteen yhteydet ovat vain lyhyen kävelymatkan päässä.
LISÄTIETOJA numerosta 020 7290 710. Lisää kohteita osoitteessa www.premises.fi.
Kohteella ei ole lain edellyttämää energiatodistusta.Kerros: 5
CRE PREMISES
Puh. Näytä puhelinnumero 020 7290 710
Vantaankoskentie 14
01670 VANTAA
