Vuokrataan toimistotilat - Helsinki
Ruoholahdenkatu 14, Kamppi, 00100 Helsinki #10810572
Persoonallista toimistotilaa Helsingin keskustassa, Kampin ostoskeskuksen läheisyydessä.
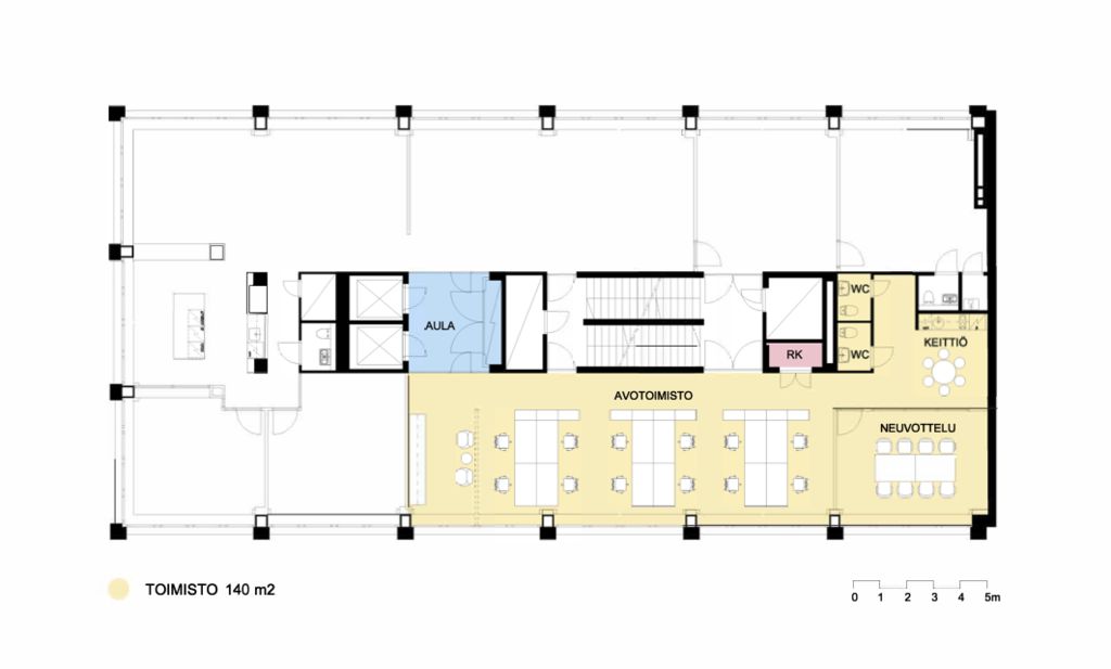
Tämä 140 m² toimistotila sijaitsee kiinteistön 6. kerroksessa. Toimistossa on huoneita ja avotilaa. Tilat on helppo viimeistellä yrityksesi tarpeiden mukaan ja brändi-ilmeeseen sopiviksi. Kuvat ovat visualisointeja valmiista tiloista.
Ruoholahdenkatu 14 on liike- ja toimistokiinteistö Helsingin Kampissa. Se on peruskorjattu täysin vuonna 2005, jonka lisäksi kiinteistön rakennusautomaatio on uusittu vuonna 2020. Tämän seurauksena energiatehokkuus on parantunut. Kiinteistössä käytetään vihreää sähköä ja hiilineutraalia jätehuoltoa. Kiinteistöllä on myös Breeam In-Use sertifikaatti Very Good tasolla. Kellarikerroksessa on pyöräparkit ja pukuhuonetilat työmatkapyöräilijöitä varten. Alueella on lukuisia lounasravintoloita ja keskustan palvelut sijaitsevat aivan kivenheiton päässä.
Ruoholahdenkatu 14 on liike- ja toimistokiinteistö Helsingin Kampissa. Se on peruskorjattu täysin vuonna 2005, jonka lisäksi kiinteistön rakennusautomaatio on uusittu vuonna 2020. Tämän seurauksena energiatehokkuus on parantunut. Kiinteistössä käytetään vihreää sähköä ja hiilineutraalia jätehuoltoa. Kiinteistöllä on myös Breeam In-Use sertifikaatti Very Good tasolla.
Kysy lisää numerosta 044 723 4700 tai info@bref.fi. Palvelumme on tilanhakijoille ilmainen.
Hissi
Bureau Real Estate Finland Oy
Lars Sonckin kaari 16, 02600 Espoo
Näytä puhelinnumero
0447234700
Bureau Real Estate Finland Oy
https://www.bref.fi