Vuokrataan toimistotilat - Espoo
Keilasatama 5, Keilaniemi, 02150 Espoo #10810560
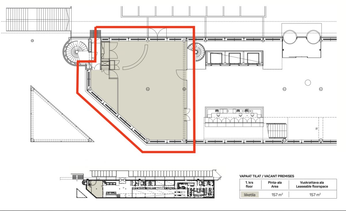
Vuokrataan 1. kerroksen tila omalla sisäänkäynnillä. Talon aulasta toinen sisäänkäynti avaraan tilaan.
Keilasatama 5 on näyttävä toimistotalo Espoon Keilaniemessä. Tämä palveluiltaan laadukas toimistotalo sijaitsee Keilaniemen parhaalla paikalla metroaseman läheisyydessä.
Keilasatamassa on laajat ja monipuoliset nykyaikaisen Business Parkin palvelut. Kiinteistön toisessa kerroksessa sijaitsee neuvottelukeskus, jonka kaikki 21 neuvotteluhuonetta ovat vuokralaisten vapaassa käytössä varausjärjestelmän kautta.
Erinomainen sijainti Kehä 1:n ja Länsiväylän vieressä takaa hyvät julkisen liikenteen palvelut. Autopaikkoja vuokrattavissa kiinteistön omasta parkkihallista.
Lisätietoja soita 020 730 4530 tai info@repoint.fi. Palvelumme on tilanhakijalle ilmainen.
Repoint Toimitilat Oy
Itälahdenkatu 22 B, 00210 Helsinki
Näytä puhelinnumero
020 730 4530
Lisätietoja soita Näytä puhelinnumero 020 730 4530 tai info@repoint.fi
https://repoint.fi/