Vuokrataan toimistotilat - Helsinki
Salomonkatu 17, Helsinki, Suomi, Kamppi, 00100 Helsinki #10810555
Perinteikäs Autotalo tarjoaa hyväkuntoista ja nykyaikaista toimitilaa sekä ravintolaliiketilaa. Kiinteistössä on 2015 valmistunut mittava perusparannushanke.
Helsingin Autotalo on saanut Breeam In-Use -ympäristösertifikaatin tasolla Very Good
Osoite
Salomonkatu 17, Helsinki, Suomi, 00100 Helsinki
Tilatyyppi
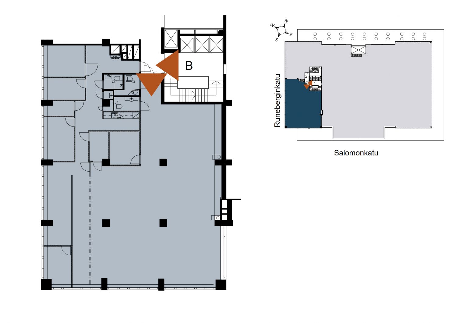
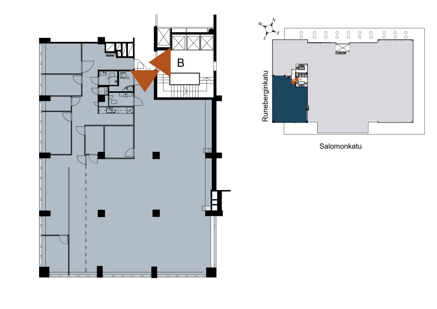
Toimistotilaa
321 m2
Kiinteistö
Helsingin Autotalo - Salomonkatu 17
Ympäristö
Metroasema: 100 m, Raitiovaunupysäkki: 200 m, Juna-asema: 800 m, Bussipysäkki: alle 100 m, Lentoasema: 19,4 km
Pysäköinti
Saatavilla
Kulkuyhteydet
Valokuitu
Muuta
Hyvin saavutettava toimistotila keskeisellä paikalla Helsingin Autotalossa.
Perinteikäs Autotalo tarjoaa hyväkuntoista ja nykyaikaista toimitilaa sekä ravintolaliiketilaa. Kiinteistössä on 2015 valmistunut mittava perusparannushanke.
Autotalo on valmistunut Kamppiin 1958 ja se on osa Kampin Autotalokorttelia. Rakennuksessa on 12 kerrosta ja kolme maanalaista kerrosta.
Kiinteistöön on tehty perusteelliset peruskorjaukset ja parannushankkeet, jossa tiloja on avarrettu ja tehty niistä käyttäjilleen avoimempia. Autotalon aulatila on muun muassa uudistettu erittäin näyttäväksi.
Tutustu Autotalon omiin verkkosivuihin.
Autotalokortteli sijaitsee näkyvällä paikalla Kampin kauppakeskuksen vieressä. Kohteeseen on erinomaiset julkiset kulkuyhteydet metrolla, raitiovaunulla ja busseilla. Yksityisautoille on maanalaista pysäköintitilaa korttelin omassa autohallissa.
Perinteikäs Autotalo tarjoaa hyväkuntoista ja nykyaikaista toimitilaa sekä ravintolaliiketilaa. Kiinteistössä on 2015 valmistunut mittava perusparannushanke.
Helsingin Autotalo on saanut Breeam In-Use -ympäristösertifikaatin tasolla Very Good
Perinteikäs Autotalo tarjoaa hyväkuntoista ja nykyaikaista toimitilaa sekä ravintolaliiketilaa. Kiinteistössä on 2015 valmistunut mittava perusparannushanke.
Autotalo on valmistunut Kamppiin 1958 ja se on osa Kampin Autotalokorttelia. Rakennuksessa on 12 kerrosta ja kolme maanalaista kerrosta.
Kiinteistöön on tehty perusteelliset peruskorjaukset ja parannushankkeet, jossa tiloja on avarrettu ja tehty niistä käyttäjilleen avoimempia. Autotalon aulatila on muun muassa uudistettu erittäin näyttäväksi.
Tutustu Autotalon omiin verkkosivuihin.
Autotalokortteli sijaitsee näkyvällä paikalla Kampin kauppakeskuksen vieressä. Kohteeseen on erinomaiset julkiset kulkuyhteydet metrolla, raitiovaunulla ja busseilla. Yksityisautoille on maanalaista pysäköintitilaa korttelin omassa autohallissa.
Perinteikäs Autotalo tarjoaa hyväkuntoista ja nykyaikaista toimitilaa sekä ravintolaliiketilaa. Kiinteistössä on 2015 valmistunut mittava perusparannushanke.
Helsingin Autotalo on saanut Breeam In-Use -ympäristösertifikaatin tasolla Very Good
Vapautuu
Kysy
Rakennusvuosi
1958
Saneerausvuosi
2015
Kerros
3
Energiatehokkuusluokka
E2013
Ota yhteyttä
LähiTapiola Kiinteistövarainhoito Oy
Heli Jalonen
Vuokrauspäällikkö
Näytä puhelinnumero
040 823 3490
Pyydä lisätietoa
