Vuokrataan toimistotilat - Helsinki
Eteläesplanadi 18, Keskusta, 00130 Helsinki #10810490
Toimistotilaa erinomaisella sijainnilla Helsingistä
Osoite
Eteläesplanadi 18, 00130 Helsinki
Tilatyyppi
Toimistotilaa
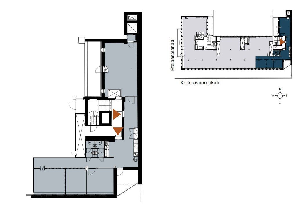
128 m2
Muuta
Vuokrattavana 128 m² toimistotila Helsingin keskustasta.
Tila sijaitsee rakennuksen 8. kerroksessa erinomaisella sijainnilla, joka tarjoaa näkyvyyttä ja sujuvat yhteydet kaupungin palveluihin.
Toimistossa on kaksi omaa terassia, jotka tuovat tilaan ainutlaatuista lisäarvoa ja viihtyisyyttä. Huomioithan, että hissi kulkee vain rakennuksen 7. kerrokseen asti, minkä jälkeen 8. kerrokseen on kuljettava portaita.
Tämä pieni toimisto sopii erityisesti yritykselle, joka arvostaa uniikkia ja persoonallista työtilaa kaupungin sydämessä.
Tervetuloa tutustumaan, varaathan välittäjältä oman esittelyaikasi. Voit kysyä meiltä myös muita sopivia vaihtoehtoja, kauttamme löydät juuri Teidän tarpeisiinne sopivat tilat.
Palvelumme on tilanhakijalle veloitukseton!
Tila sijaitsee rakennuksen 8. kerroksessa erinomaisella sijainnilla, joka tarjoaa näkyvyyttä ja sujuvat yhteydet kaupungin palveluihin.
Toimistossa on kaksi omaa terassia, jotka tuovat tilaan ainutlaatuista lisäarvoa ja viihtyisyyttä. Huomioithan, että hissi kulkee vain rakennuksen 7. kerrokseen asti, minkä jälkeen 8. kerrokseen on kuljettava portaita.
Tämä pieni toimisto sopii erityisesti yritykselle, joka arvostaa uniikkia ja persoonallista työtilaa kaupungin sydämessä.
Tervetuloa tutustumaan, varaathan välittäjältä oman esittelyaikasi. Voit kysyä meiltä myös muita sopivia vaihtoehtoja, kauttamme löydät juuri Teidän tarpeisiinne sopivat tilat.
Palvelumme on tilanhakijalle veloitukseton!
Vapautuu
Kysy
Kerros
8
Ota yhteyttä
Tuloskiinteistöt Oy
Rikhardinkatu 2 B 5, 00130 Helsinki
Näytä puhelinnumero
(09) 6841 620
Jorma Ryynänen
Commercial Real Estate Advisor LKV, LVV
Näytä puhelinnumero
+358 40 708 4064
Nina Meyke
Commercial Real Estate Advisor
Näytä puhelinnumero
+358 50 466 1519
Pyydä lisätietoa
