Vuokrataan toimistotilat - Oulu
Isokatu 32, Keskusta, 90100 Oulu #10810489
Toimistotilaa Oulusta
Osoite
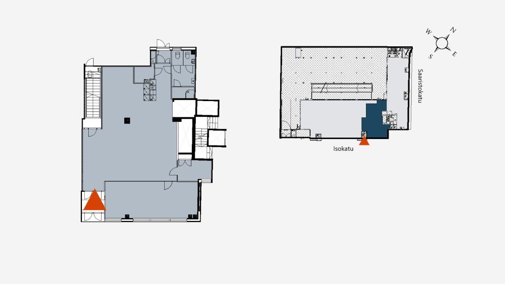
Isokatu 32, 90100 Oulu
Tilatyyppi
Toimistotilaa
696 m2
Muuta
Vuokrattavana 696 m² toimistotilaa, joka sijaitsee rakennuksen 1. ja 2. kerroksessa. Ensimmäisen kerroksen tila on 172 m², ja toisen kerroksen tila on 524 m².
Kokonaisuus koostuu useista huoneista ja avotilasta, jotka tarjoavat joustavat mahdollisuudet tilankäyttöön.
Tila on valoisa ja vastikään remontoitu, joten se tarjoaa viihtyisät ja toimivat puitteet työskentelyyn. Sijainti on hyvä ja helposti saavutettavissa, mikä tukee yrityksesi toimintaa. Toimitila on heti vapaa, ja se sopii yritykselle, joka arvostaa muunneltavuutta ja laadukasta työympäristöä.
Tervetuloa tutustumaan, varaathan välittäjältä oman esittelyaikasi. Voit kysyä meiltä myös muita sopivia vaihtoehtoja, kauttamme löydät juuri Teidän tarpeisiinne sopivat tilat.
Palvelumme on tilanhakijalle veloitukseton!
Kokonaisuus koostuu useista huoneista ja avotilasta, jotka tarjoavat joustavat mahdollisuudet tilankäyttöön.
Tila on valoisa ja vastikään remontoitu, joten se tarjoaa viihtyisät ja toimivat puitteet työskentelyyn. Sijainti on hyvä ja helposti saavutettavissa, mikä tukee yrityksesi toimintaa. Toimitila on heti vapaa, ja se sopii yritykselle, joka arvostaa muunneltavuutta ja laadukasta työympäristöä.
Tervetuloa tutustumaan, varaathan välittäjältä oman esittelyaikasi. Voit kysyä meiltä myös muita sopivia vaihtoehtoja, kauttamme löydät juuri Teidän tarpeisiinne sopivat tilat.
Palvelumme on tilanhakijalle veloitukseton!
Vapautuu
Kysy
Rakennusvuosi
1984
Kerros
1-2
Ota yhteyttä
Tuloskiinteistöt Oy
Rikhardinkatu 2 B 5, 00130 Helsinki
Näytä puhelinnumero
(09) 6841 620
Jorma Ryynänen
Commercial Real Estate Advisor LKV, LVV
Näytä puhelinnumero
+358 40 708 4064
Nina Meyke
Commercial Real Estate Advisor
Näytä puhelinnumero
+358 50 466 1519
Pyydä lisätietoa
