Vuokrataan toimistotilat - Jyväskylä
Vapaudenkatu 48-50, 40100 Jyväskylä #10810432
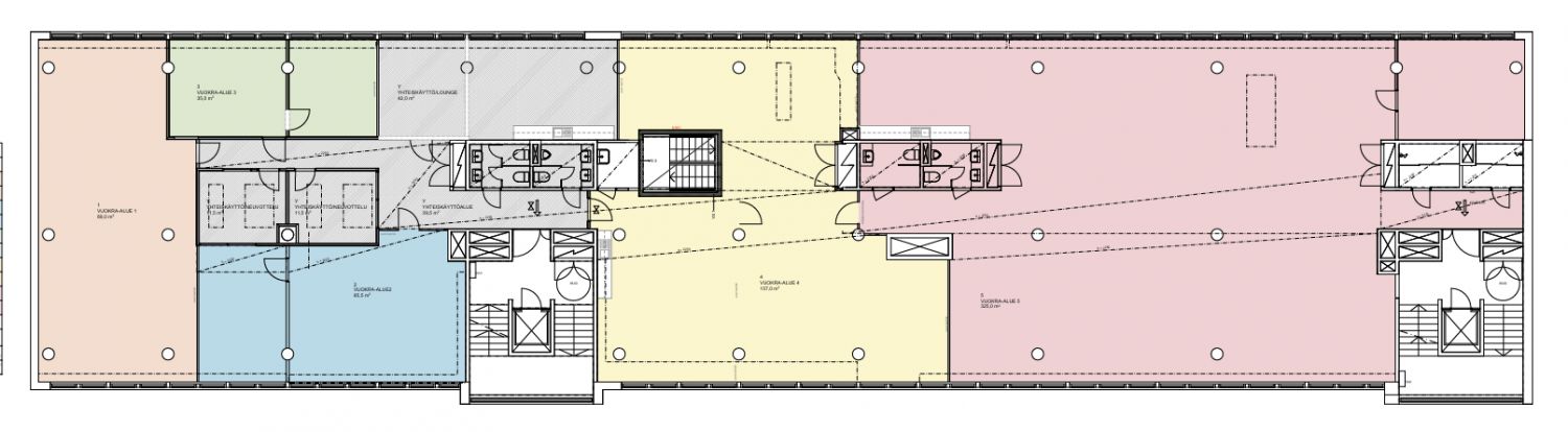
Vuokrataan Vapaudenkadulta koko toisen kerroksen käsittävä, n. 801m2 toimistotila. Paljon avotilaa sekä yksittäisiä toimistohuoneita, ja tilat on hyvin akustoitu sekä päivitetty muutama vuosi sitten. Tilaan kuuluu omat WC-tilat sekä saarekkeellinen keittiö. Heti saatavilla oleva tila on jaettavissa myös kahteen 400m2-kokoiseen osaan.
Toimistokokonaisuus sijaitsee aivan Jyväskylän ydinkeskustassa, n. 200 metrin päässä Matkakeskukselta joten kulkuyhteydet sekä keskustan palvelut ovat lähellä. Pysäköintitilaa saatavilla talon omasta autohallista sekä pihalta.
Lisätiedot ja näytöt:
Henri Kumpulainen, Puh: 040 864 3631, s-posti: henri.kumpulainen@aveon.fi
Miska Puustinen, Puh: 045 354 6836, s-posti: miska.puustinen@aveon.fi
Näkyvällä paikalla
Jaettavissa
Aveon Real Estate Oy
Kauppakatu 18 C 26, 40100 Jyväskylä
Henri Kumpulainen
Puh.
Näytä puhelinnumero
040 864 3631
henri.kumpulainen@aveon.fi
Olemme kiinteistöliiketoiminnan asiantuntija, joka toimii yrittäjämäisesti neuvonantajana kiinteistökaupoissa, toimitilavälittämisessä sekä kiinteistökehityksessä.
Asiakkaitamme ovat kotimaiset ja ulkomaiset kiinteistönomistajat, -sijoittajat sekä tilojen käyttäjät kaikkialla Suomessa.
