Vuokrataan toimistotilat - Helsinki
Elimäenkatu 9 B, Vallila, 00510 Helsinki #10810338
Modernia ja viihtyisää toimistotilaa vapaana Helsingin Vallilasta
Osoite
Elimäenkatu 9 B, 00510 Helsinki
Tilatyyppi
Toimistotilaa
671,5 m2
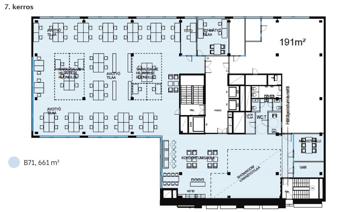
Pohjapiirros
Vuokra
Hintatiedot pyydettäessä!
Vuokraan sisältyy lämpö
Kiinteistö
Tarjolla on valoisa ja tehokas toimistotila Pasilan Elimäentiellä. Tämä 7. kerroksessa sijaitseva tila tarjoaa loistavat puitteet yritystoiminnalle nykyaikaisessa ympäristössä.
Ominaisuudet
+ Historiallinen ja ainutlaatuinen kiinteistö
+ Korkea huonekorkeus ja kattoikkunat
+ Tilat kunnostetaan vuokralaisen tarpeiden mukaan
Kysy lisää tai sovi esittely – suunnitellaan yhdessä juuri teille sopiva ratkaisu!
Ominaisuudet
+ Historiallinen ja ainutlaatuinen kiinteistö
+ Korkea huonekorkeus ja kattoikkunat
+ Tilat kunnostetaan vuokralaisen tarpeiden mukaan
Kysy lisää tai sovi esittely – suunnitellaan yhdessä juuri teille sopiva ratkaisu!
Sijainti
Elimäenkatu 9 sijaitsee keskeisellä paikalla, hyvien kulkuyhteyksien varrella. Alueella on kattava palveluverkosto, johon kuuluu ravintoloita, kahviloita, liikuntapaikkoja sekä muita yritystoimintaa tukevia palveluita.
Kiinteistö on helposti saavutettavissa sekä julkisilla liikennevälineillä että omalla autolla. Raitiovaunut, bussit ja lähijunat palvelevat alueella hyvin, ja pysäköintimahdollisuuksia on tarjolla sekä kadunvarsipaikoituksena että pysäköintihalleissa.
Elimäenkadun ympäristö yhdistää urbaanin kaupunkimaiseman ja historiallista arkkitehtuuria, mikä luo ainutlaatuisen ja inspiroivan työympäristön. Sijainti on ihanteellinen yrityksille, jotka arvostavat saavutettavuutta ja lähellä olevia palveluja.
Kiinteistö on helposti saavutettavissa sekä julkisilla liikennevälineillä että omalla autolla. Raitiovaunut, bussit ja lähijunat palvelevat alueella hyvin, ja pysäköintimahdollisuuksia on tarjolla sekä kadunvarsipaikoituksena että pysäköintihalleissa.
Elimäenkadun ympäristö yhdistää urbaanin kaupunkimaiseman ja historiallista arkkitehtuuria, mikä luo ainutlaatuisen ja inspiroivan työympäristön. Sijainti on ihanteellinen yrityksille, jotka arvostavat saavutettavuutta ja lähellä olevia palveluja.
Vapautuu
Heti
Energiatehokkuusluokka
Ei lain edellyttämää energiatodistusta
Näkyvällä paikalla
Ota yhteyttä
Arvo Premises Oy
Joakim Kukkonen
Osakas, Toimitilavälittäjä
Näytä puhelinnumero
040 555 8106
Seppo Pakarinen
Osakas, Kiinteistönvälittäjä. LKV, YKV, AKA
Näytä puhelinnumero
040-703 8000
Pyydä lisätietoa
