Vuokrataan toimistotilat - Helsinki
Itälahdenkatu 23, Lauttasaari, 00210 Helsinki #10810334
Erikokosia tiloja klikkaa auki!
Osoite
Itälahdenkatu 23, 00210 Helsinki
Tilatyyppi
Toimistotilaa
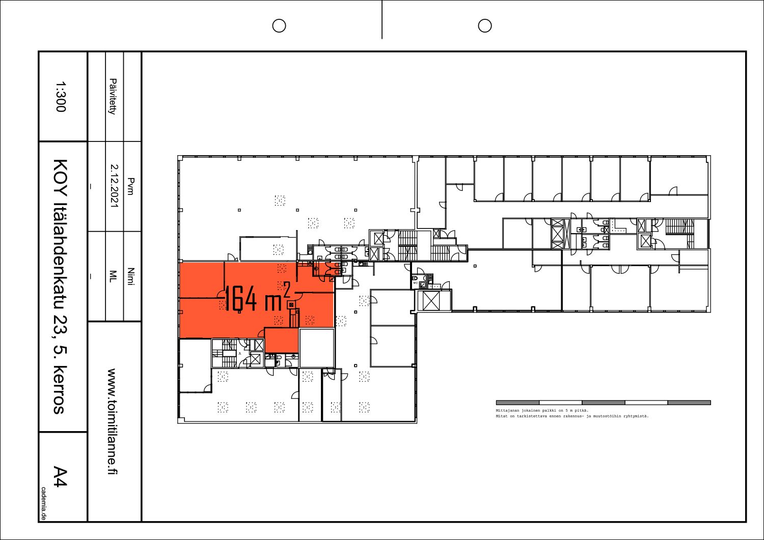
164 m2
Tilajako
Monia erikokoisia toimistohuoneita.
Kiinteistö
Vapaana:
Toimistotila 164m², Helsinki
Valoisassa vuokrattavassa avotoimistossa on lisäksi kolme erillistä huonetta toimistohuoneiksi tai neuvottelutiloiksi. Yksi huoneista lasiseinäinen. Ylimmän kerroksen toimistotilassa myös kattoikkunoita. Keittiö ja wc. Laminaattilattia. Käytössä henkilöhissi.
Helsingin Lauttasaaressa sijaitseva toimistorakennus on valmistunut 1970-luvulla. Sen kokonaispinta-ala on 7000 m². Kohteessa on omia parkkipaikkoja ja lastauslaituri. Toimitilojen lähistöllä on useita lounasravintoloita. Metroasemalle on matkaa noin 1 km.
Rakennuksessa on viisi kerrosta ja kellarikerros. Henkilöhissit kulkevat kaikkiin kerroksiin, tavarahissit kellarista 4. kerrokseen asti.
Itälahdenkatu 23:sta miltei puolet on vuokrattu tukku- ja vähittäiskaupan tai agentuuritoiminnan harjoittamiseen. Noin viidenneksen alasta ovat toiminnalleen varanneet ammatillisen toiminnan yritykset (taloushallinto ja mainostoimistot). Lähes samaa luokkaa on informaatio ja viestintä -alan toiminta kuten elokuvien, kirjojen, lehtien ja musiikin kustantaminen.
Toimistotilojen kuukausivuokrat ovat 9-12 €/m² + alv, varastotilojen kk-vuokrat puolestaan alkaen 6 €/m² + alv.
Toimistotila 164m², Helsinki
Valoisassa vuokrattavassa avotoimistossa on lisäksi kolme erillistä huonetta toimistohuoneiksi tai neuvottelutiloiksi. Yksi huoneista lasiseinäinen. Ylimmän kerroksen toimistotilassa myös kattoikkunoita. Keittiö ja wc. Laminaattilattia. Käytössä henkilöhissi.
Helsingin Lauttasaaressa sijaitseva toimistorakennus on valmistunut 1970-luvulla. Sen kokonaispinta-ala on 7000 m². Kohteessa on omia parkkipaikkoja ja lastauslaituri. Toimitilojen lähistöllä on useita lounasravintoloita. Metroasemalle on matkaa noin 1 km.
Rakennuksessa on viisi kerrosta ja kellarikerros. Henkilöhissit kulkevat kaikkiin kerroksiin, tavarahissit kellarista 4. kerrokseen asti.
Itälahdenkatu 23:sta miltei puolet on vuokrattu tukku- ja vähittäiskaupan tai agentuuritoiminnan harjoittamiseen. Noin viidenneksen alasta ovat toiminnalleen varanneet ammatillisen toiminnan yritykset (taloushallinto ja mainostoimistot). Lähes samaa luokkaa on informaatio ja viestintä -alan toiminta kuten elokuvien, kirjojen, lehtien ja musiikin kustantaminen.
Toimistotilojen kuukausivuokrat ovat 9-12 €/m² + alv, varastotilojen kk-vuokrat puolestaan alkaen 6 €/m² + alv.
Vapautuu
Heti
Ota yhteyttä
Arvo Premises Oy
Joakim Kukkonen
Osakas, Toimitilavälittäjä
Näytä puhelinnumero
040 555 8106
Seppo Pakarinen
Osakas, Kiinteistönvälittäjä. LKV, YKV, AKA
Näytä puhelinnumero
040-703 8000
Pyydä lisätietoa
