Vuokrataan liiketilat - Helsinki
Haiku, Kaikukatu 3, Kallio, 00530 Helsinki #10810326
Tarjolla monipuolinen ja moderni tila Kaikukadulla, joka soveltuu showroomiksi, toimistoksi tai liiketilaksi.
Osoite
Kaikukatu 3, 00530 Helsinki
Tilatyyppi
Liiketilaa
316 m2
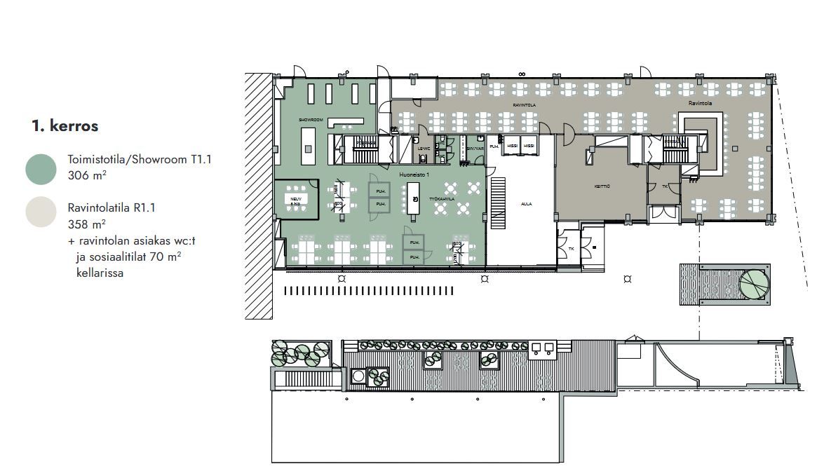
Pohjapiirros
Vuokra
Hintatiedot pyydettäessä!
Vuokraan sisältyy lämpö
Kiinteistö
Haikun tämä 316 m²:n tila sijaitsee kiinteistön 1. kerroksessa, ja se on suunniteltu vastaamaan monenlaisiin liiketoiminnan tarpeisiin.
Tilat ovat valmistuneet syksyllä/2024 ja ovat nyt muuttovalmiina sekä odottavat uusia vuokralaisia!
Ilmoituksessa esitetyt kuvat ovat havainnekuvia ja antavat esimerkin kiinteistön tulevasta ulkoasusta ja mahdollisuuksista.
Talon kellarikerroksessa on esteettömät suihku- ja pukutilat miehille ja naisille sekä kätevä kuivatushuone vaatteille. Polkupyöräparkit sijaitsevat pääoven vieressä rauhallisella sisäpihalla ja kellarikerroksen hallissa. Myös sähköpyörien akkujen lataus onnistuu.
Kiinteistöstä myös kerroksista 2-7 tiloja vapaana!
Ota yhteyttä ja käydään katsomassa tiloja paikan päällä!
Tilat ovat valmistuneet syksyllä/2024 ja ovat nyt muuttovalmiina sekä odottavat uusia vuokralaisia!
Ilmoituksessa esitetyt kuvat ovat havainnekuvia ja antavat esimerkin kiinteistön tulevasta ulkoasusta ja mahdollisuuksista.
Talon kellarikerroksessa on esteettömät suihku- ja pukutilat miehille ja naisille sekä kätevä kuivatushuone vaatteille. Polkupyöräparkit sijaitsevat pääoven vieressä rauhallisella sisäpihalla ja kellarikerroksen hallissa. Myös sähköpyörien akkujen lataus onnistuu.
Kiinteistöstä myös kerroksista 2-7 tiloja vapaana!
Ota yhteyttä ja käydään katsomassa tiloja paikan päällä!
Sijainti
Kaikukatu 3 sijaitsee erinomaisella paikalla, joka tarjoaa hyvät kulkuyhteydet ja palvelut aivan lähettyvillä. Alueella on monipuolinen tarjonta ravintoloita, kahviloita ja muita liiketoimintaa tukevia palveluja, jotka tekevät siitä houkuttelevan kohteen niin työntekijöille kuin asiakkaille.
Kiinteistö on helposti saavutettavissa julkisilla liikennevälineillä, ja myös pysäköintimahdollisuudet alueella ovat hyvät. Sijainti yhdistää urbaanin ympäristön vetovoiman ja käytännöllisyyden, tehden siitä ihanteellisen paikan yrityksille, jotka arvostavat näkyvyyttä ja sujuvaa saavutettavuutta.
Kaikukadun ympäristö tarjoaa lisäksi modernin ja elinvoimaisen ilmapiirin, joka tukee innovatiivista ja inspiroivaa työympäristöä.
Kiinteistö on helposti saavutettavissa julkisilla liikennevälineillä, ja myös pysäköintimahdollisuudet alueella ovat hyvät. Sijainti yhdistää urbaanin ympäristön vetovoiman ja käytännöllisyyden, tehden siitä ihanteellisen paikan yrityksille, jotka arvostavat näkyvyyttä ja sujuvaa saavutettavuutta.
Kaikukadun ympäristö tarjoaa lisäksi modernin ja elinvoimaisen ilmapiirin, joka tukee innovatiivista ja inspiroivaa työympäristöä.
Vapautuu
Heti vapaana
Energiatehokkuusluokka
Ei lain edellyttämää energiatodistusta
Katutasossa
Näkyvällä paikalla
Ota yhteyttä
Arvo Premises Oy
Joakim Kukkonen
Osakas, Toimitilavälittäjä
Näytä puhelinnumero
040 555 8106
Seppo Pakarinen
Osakas, Kiinteistönvälittäjä. LKV, YKV, AKA
Näytä puhelinnumero
040-703 8000
Pyydä lisätietoa
