Vuokrataan toimistotilat - Helsinki
Työpajankatu 13, Kalasatama, 00580 Helsinki #10810323
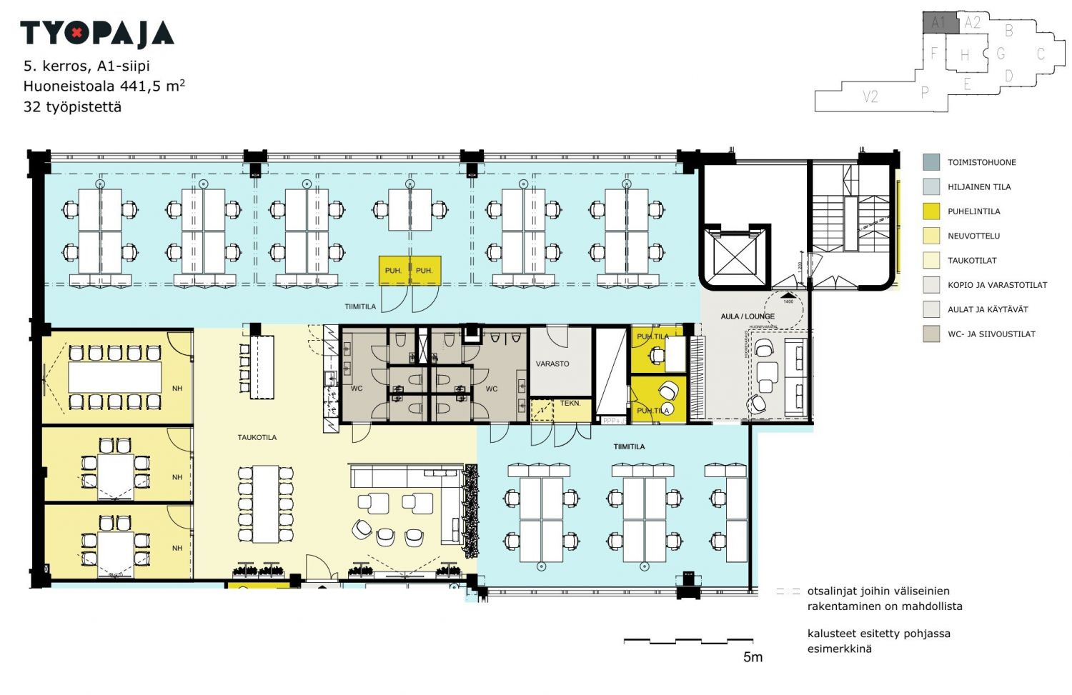
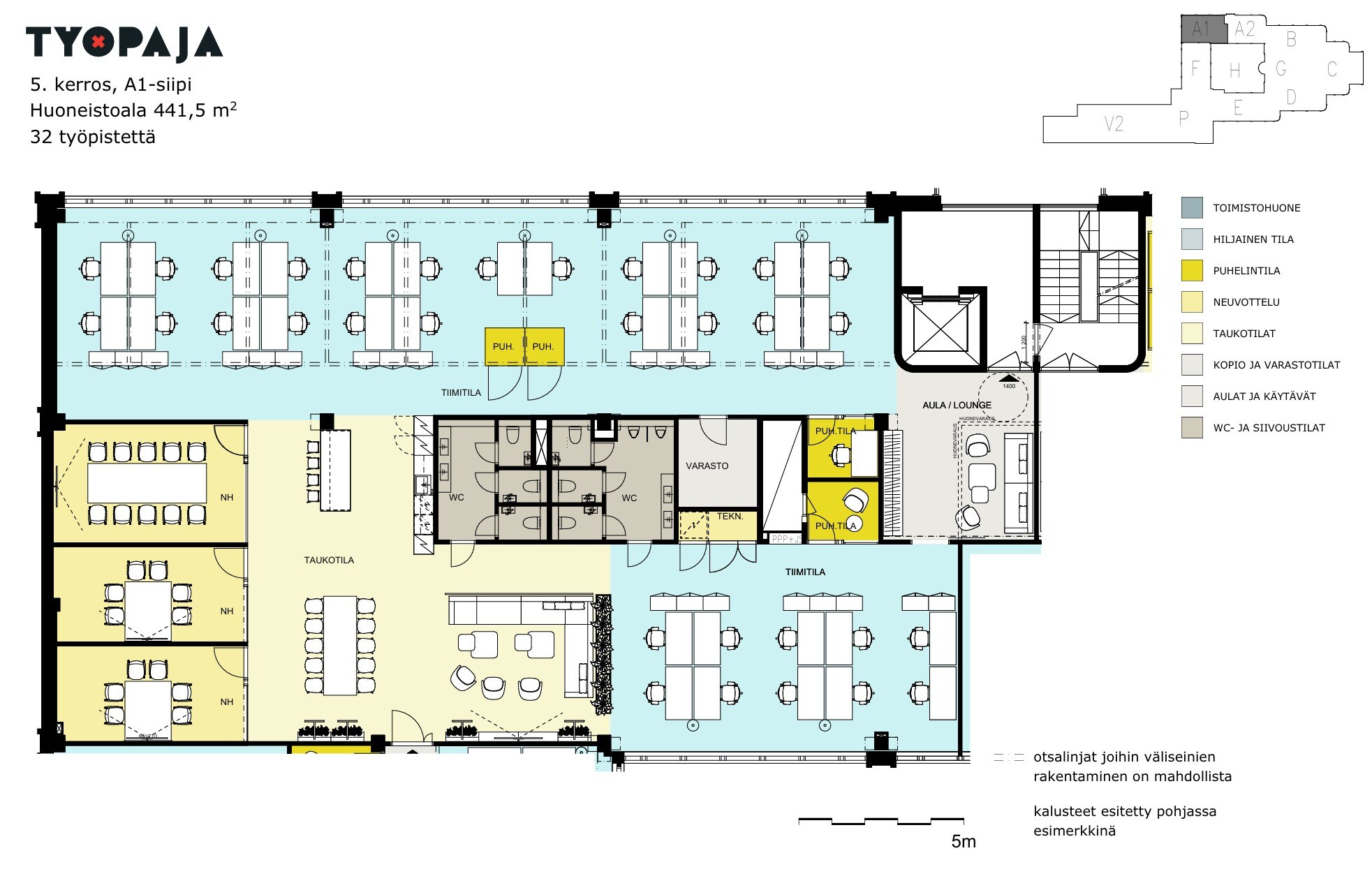
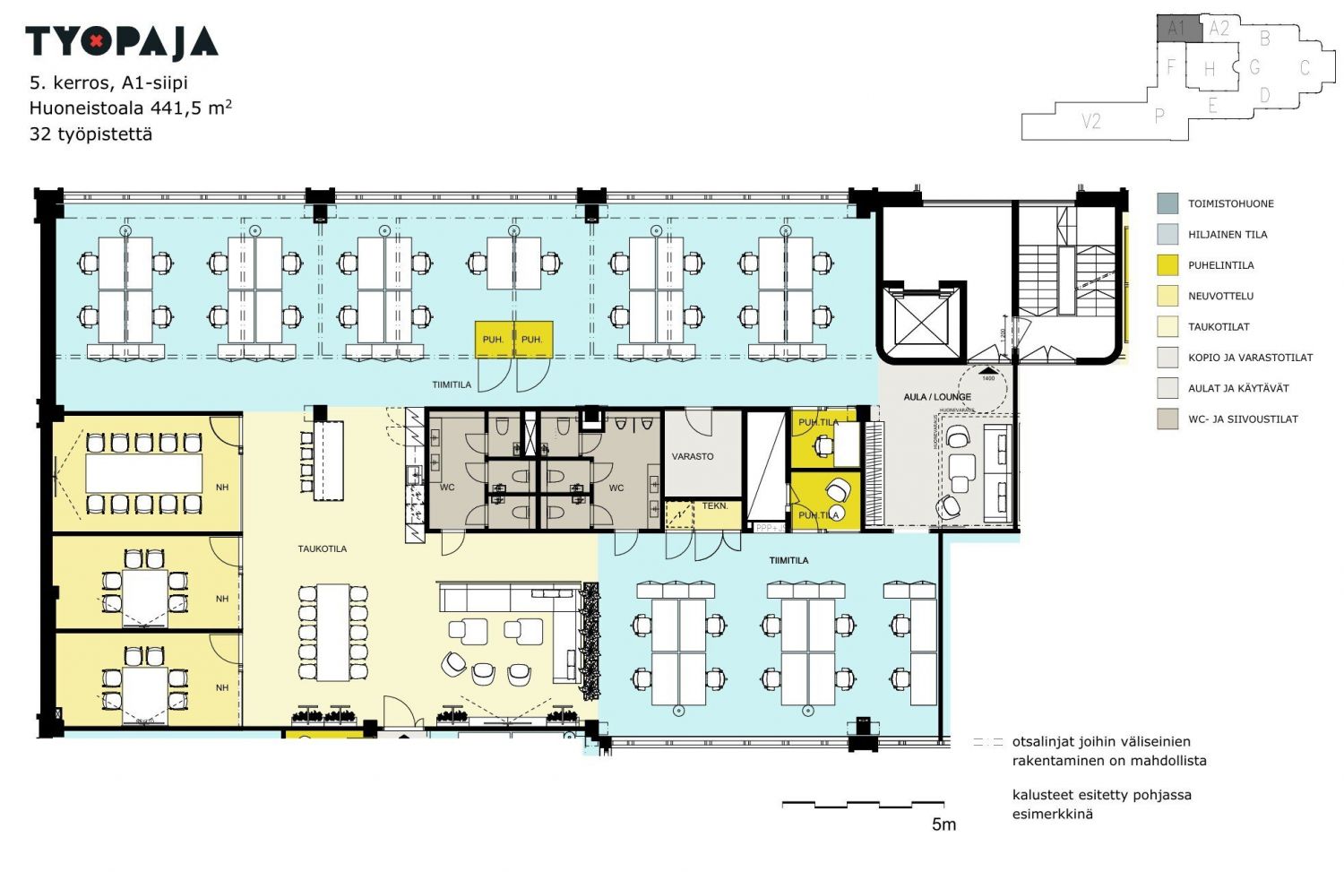
Viidennen kerroksen viihtyisä toimisto Kalasataman Työpajalta. Avotoimiston lisäksi tilaan sisältyy kolme erillistä neukkaria, mukava taukotila-keittiö-lounge-yhdistelmä ja kätevä tiimityötila, erillään muusta avokonttorista. Tilaan kuuluu pari erillistä puhelinkoppia ja -tilaa, sekä luonnollisesti omat wc-tilat.
Työpaja sijaitsee Helsingin Kalasatamassa alueella, joka on viime vuosina kehittynyt voimakkaasti - sijainti hyvien kulkuyhteyksien ja palveluiden äärellä on edelleen lisännyt alueen kiinnostavuutta. Monien yritysten pääkonttori onkin sijoittunut Kalasatamaan viime vuosien aikana ja trendi tuskin on hiipumaan päin.
3D- showcase kiinteistön hyvin verrannollisesta 10. kerroksen tilasta.
Tässä uuden ajan työpaikassa modernit toimitilat, monipuoliset palvelut ja erinomainen sijainti yhdistyvät poikkeukselliseksi toimitilakokonaisuudeksi. Yhteiskäytössä olevat neuvottelutilat, auditorio, kuntosali, liikuntatila sekä ravintola on suunniteltu työntekijän tarpeet huomioiden. Kiinteistön ajanmukaisuudesta kertoo Työpajalle vuonna 2018 myönnetty LEED Gold – vastuullisuussertifikaatti.
Työpajan ravintolapalvelut takaavat terveellisen ja herkullisen arjen, illanvietot ja catering-palvelut. Tapahtumia voi järjestää ravintolassa, neuvottelutiloissa, kattoterassilla tai lämpiössä. Omasta ja tiimin hyvinvoinnista voi huolehtia palloiluhallissa tai kuntosalilla ja palautumisesta viihtyisissä saunatiloissa.
Me Croisettella autamme teitä löytämään teille parhaat tilat! Olemme puolueettomia asiantuntijoita ja tunnemme toimitilamarkkinat, talot sekä tilat vankalla kokemuksella. Meillä on välityksessä kaikki toimitilat ja tiedämme niiden alustavat vuokratasot.
Tehtävämme on tehdä toimitilahaustanne onnistunut ja helppo. Saamme palkkiomme kiinteistönomistajalta, joten sinulle palvelumme on täysin maksuton.
Hissi
Croisette Real Estate Partner
Erottajankatu 5 A 6, 00130 Helsinki
Näytä puhelinnumero
+358 400 585 857
Croisette Vuokraus
Näytä puhelinnumero
+358400585857
