Vuokrataan toimistotilat - Helsinki
Sahaajankatu 24, Herttoniemi, 00880 Helsinki #10810299
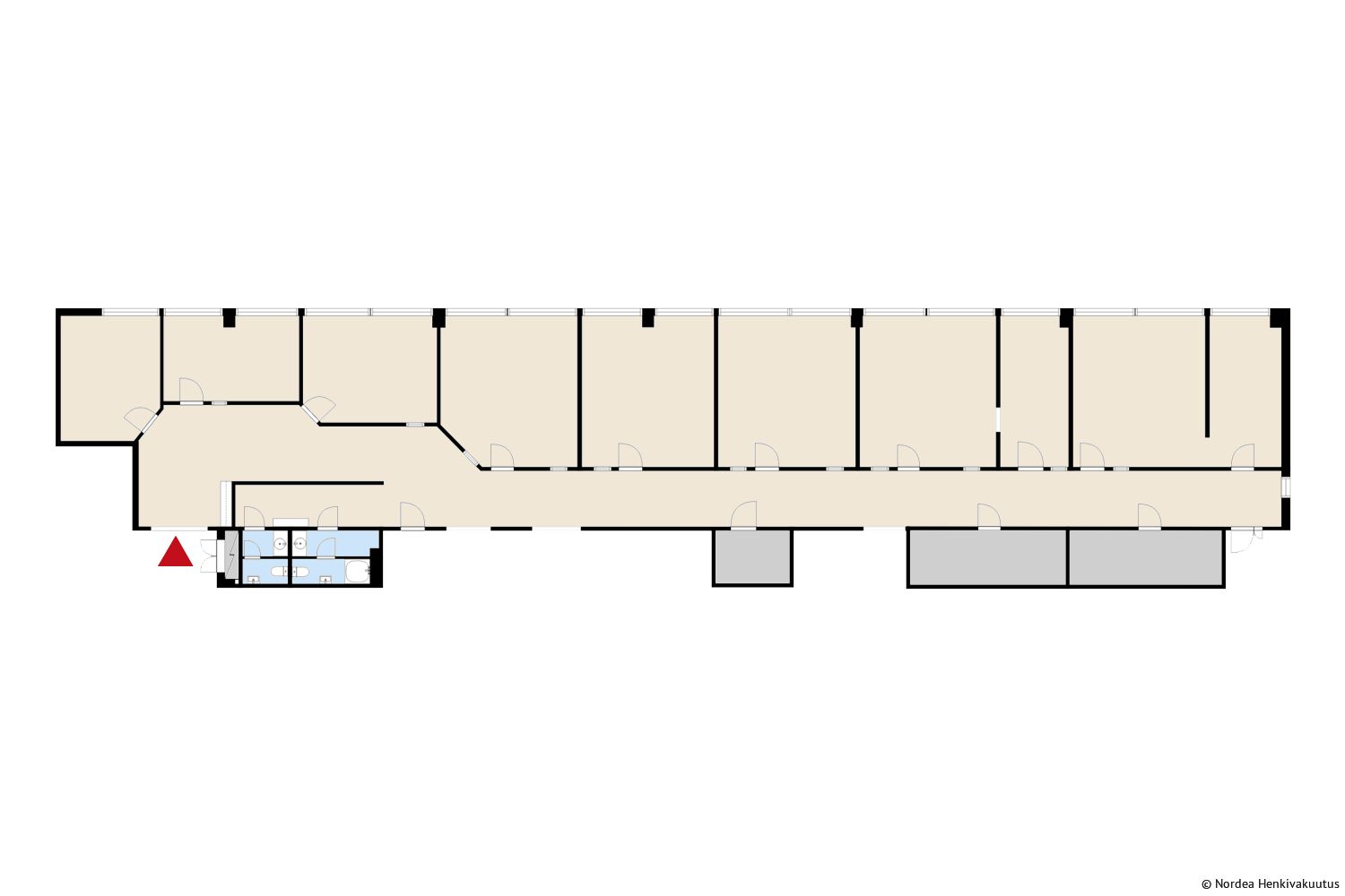
Vuokrattavana peruskuntoinen toimistotila Herttoniemen teollisuusalueella. Tilassa on eri kokoisia toimistohuoneita. Kohdekiinteistö sijaitsee hyvien kulkuyhteyksien varrella. Kysy lisätietoja!
Osoite
Sahaajankatu 24, 00880 Helsinki
Tilatyyppi
Toimistotilaa
352 m2
Kiinteistö
Helsingin Sahaajankatu 24
Pysäköinti
Vuokrattavissa pysäköintipaikkoja kiinteistön pihalla.
Muuta
Tilan ominaisuudet:
Vapautuu
Heti vapaa
Kerros
6.
Energiatehokkuusluokka
C
Ota yhteyttä
Nordea Henkivakuutus Suomi Oy
Aleksis Kiven katu 9, Helsinki 00020 NORDEA
Juha Hakala
Näytä puhelinnumero
050 477 7966
Nordea Henkivakuutus Suomi Oy vuokraa toimitiloja omistamistaan ja hallinnoimistaan sijoituskiinteistöistä pääkaupunkiseudulla. Toimitilavuokrauksessa Nordea Henkivakuutuksen yhteistyökumppani on Newsec Asset Management.
http://nordeahenkivakuutustoimitilat.fiPyydä lisätietoa
