Vuokrataan toimistotilat - Helsinki
Annankatu 34, Kamppi, 00100 Helsinki #10810266
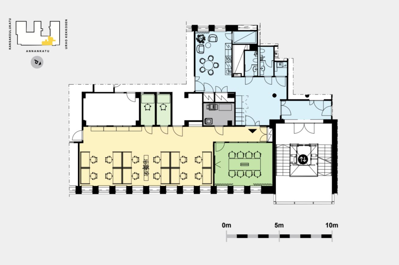
120 m2 kokoinen toimistotila, jolla on osuus toisen vuokralaisen kanssa jaettavista yhteistiloista. Omassa tilassa on avotoimistoa, neuvottelutila, kaksi vetäytymistilaa sekä varastotila. Jaettavat yhteistilat ovat pinta-alaltaan noin 59 m2 ja kattavat yhteisen taukokeittiön, wc:t sekä aulaloungen. Vuokranmaksu pinta-alan 149,5 m2 perusteella.
Kampin Huippu tarjoaa modernit toimitilat Helsingin keskustan ytimestä. Keskustan kattavan palveluvalikoiman lisäksi kiinteistössä on kattavat aulapalvelut sekä ravintola- ja kokouspalvelut.
Lisätietoja 020 7290 710 ja lisää kohteita premises.fi
Kohteella ei ole lain edellyttämää energiatodistusta tai energialuokka ei tiedossa.Kerros: 7
CRE PREMISES
Puh. Näytä puhelinnumero 020 7290 710
Vantaankoskentie 14
01670 VANTAA
