Vuokrataan liiketilat - Helsinki
Annankatu 34, Kamppi, 00100 Helsinki #10810261
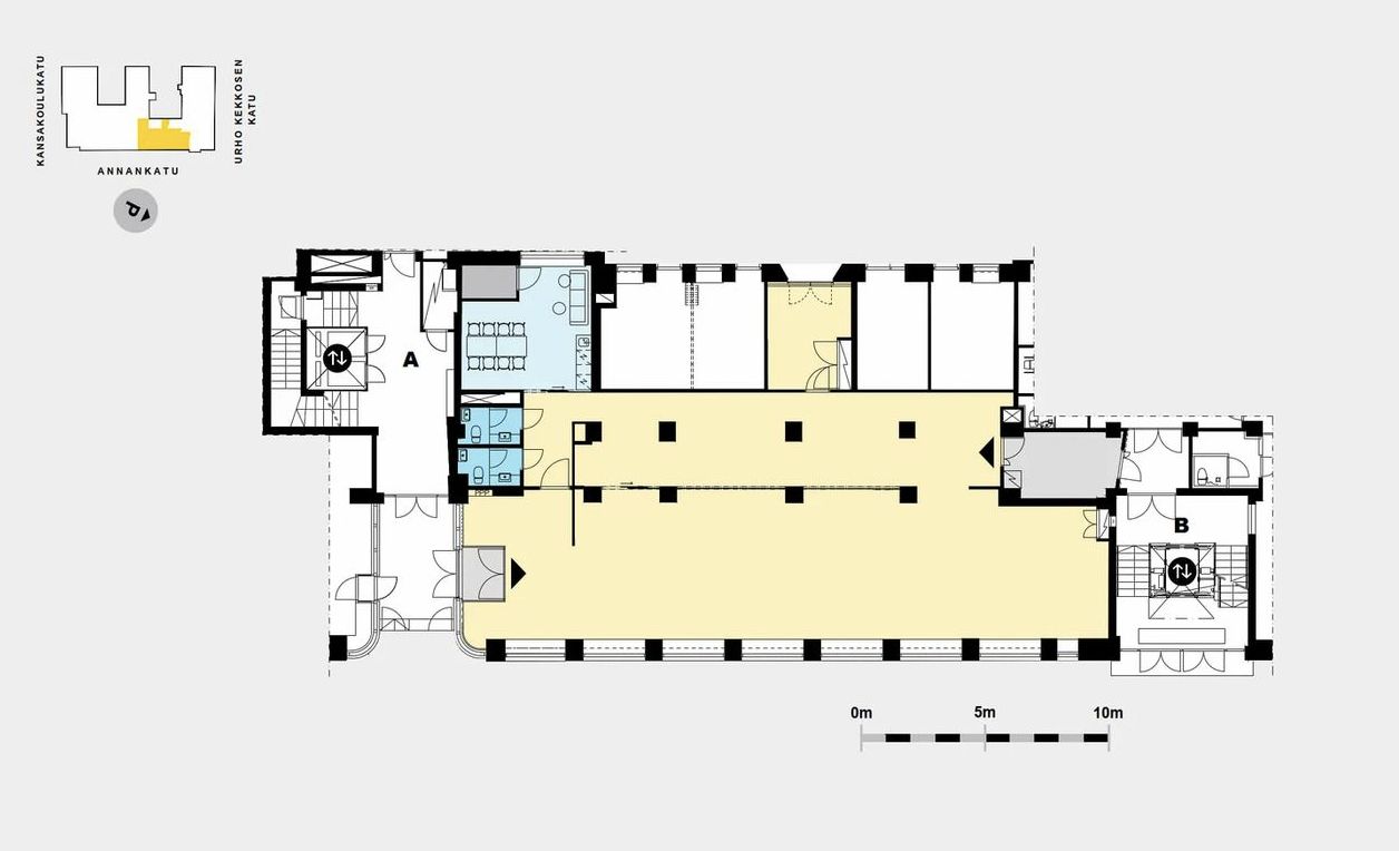
Liiketila, joka koostuu laajasta avotilasta, toimivasta taukotilasta sekä erillisestä neuvottelutilasta, lisäksi kaksi wc-tilaa ja pieni varastotila. Sijainti erinomaisella liikepaikalla kaiken keskellä ja suuret ikkunat takaavat toiminnalle huomattavan näkyvyyden. Tilaan sisäänkäynti Annankadulta.
Annankadulta vapautumassa siistiä ja persoonallista toimistotilaa. Tyylikästä loft-henkistä tilaa vanhasta kirjapainotalosta keskustan ytimessä Kampin Huipussa Kansakoulukadun puolella. Tilassa mahdollisuus huoneisiin tai täysin avotilaan.
Kiinteistö on tällä hetkellä peruskorjauksessa, ja tilat ovat muuttovalmiita arviolta 5/2022. Ohessa havainnollistavia kuvia kiinteistöstä.
Kampin Huippu tarjoaa modernit toimitilat Helsingin keskustan ytimestä. Toimitilojen muunneltavuuden ansiosta Kampin Huipulta löytyy toimitilat jokaiseen tarpeeseen. Keskustan kattavan palveluvalikoiman lisäksi kiinteistössä on kattavat aulapalvelut sekä ravintola- ja kokouspalvelut.
Lisätietoja 020 7290 710 ja lisää kohteita premises.fi
Kohteella ei ole lain edellyttämää energiatodistusta tai energialuokka ei tiedossa.Kerros: 1
CRE PREMISES
Puh. Näytä puhelinnumero 020 7290 710
Vantaankoskentie 14
01670 VANTAA
