Vuokrataan toimistotilat - Jyväskylä
Lutakonaukio 7, Lutakko, 40100 Jyväskylä #10810153
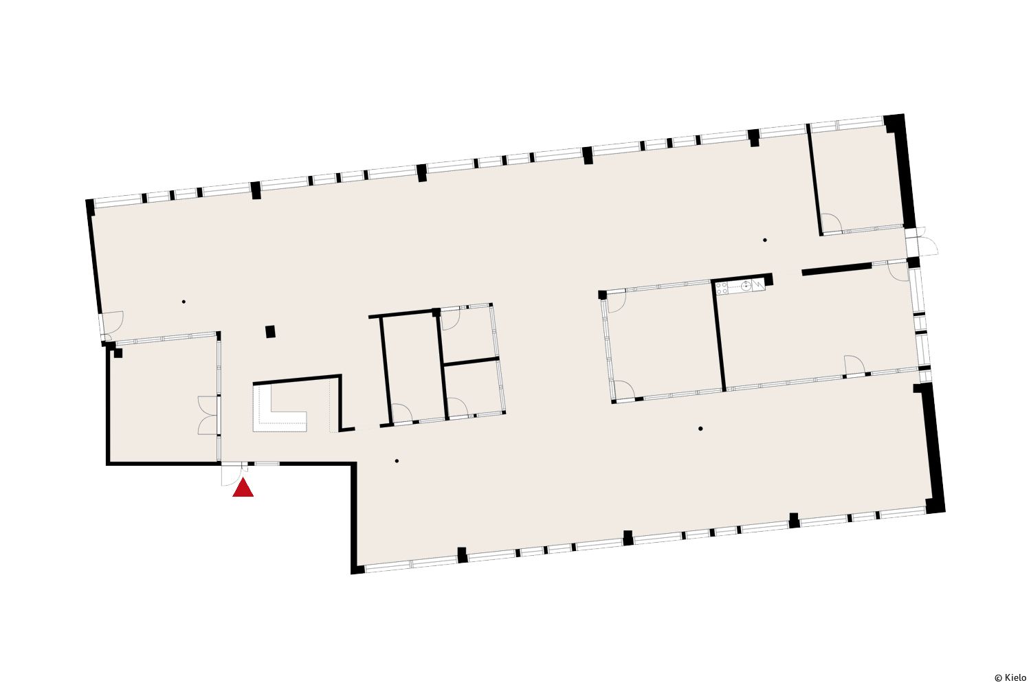
Moderni ja muuntojoustava monitilatoimisto, joka mahdollistaa monenlaisen työskentelyn. Tilassa on keittiö, vetäytymistiloja, neuvottelu- ja tiimihuoneita sekä avotilaa. Yhteiskäyttöiset sosiaalitilat muiden vuokralaisten kanssa. Kaikki muutostyöt ovat mahdollisia.
Kiinteistö tarjoaa laajan valikoiman palveluita. Katutasossa palvelee Kielon asiakaspalvelu sekä neuvottelutilat. Kiinteistön sisäpihalla latauspaikkoja sähköautoille. Kohde sijaitsee hyvien kulkuyhteyksien varrella Jyväskylän Lutakossa. Keskustan palveluiden, lukuisien lounasravintoloiden ja matkakeskuksen välittömässä läheisyydessä. Tervetuloa tutustumaan!
Kielo
Katja Kröger
Näytä puhelinnumero
050 512 7707
Minna Hämäläinen
Näytä puhelinnumero
040 564 8042
Tarjoamme toimi-, kokous- ja saunatiloja niin isoille kuin pienillekin yrityksille!
https://kielotoimitilat.fi/