Vuokrataan toimistotilat - Espoo
Säterinkatu 6, Leppävaara, 02600 Espoo #10810142
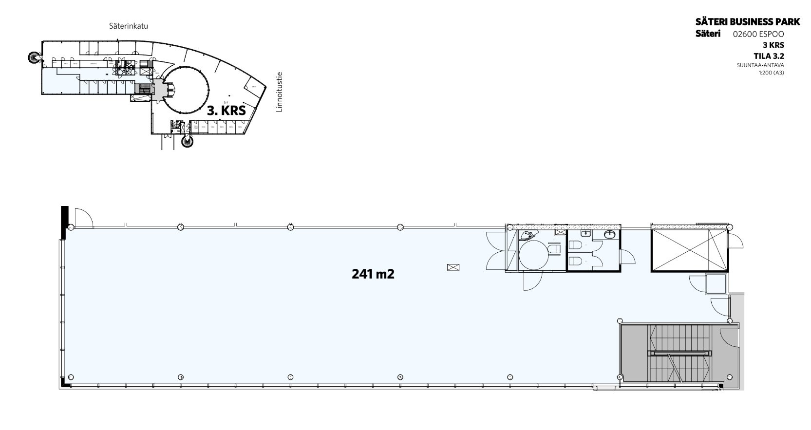
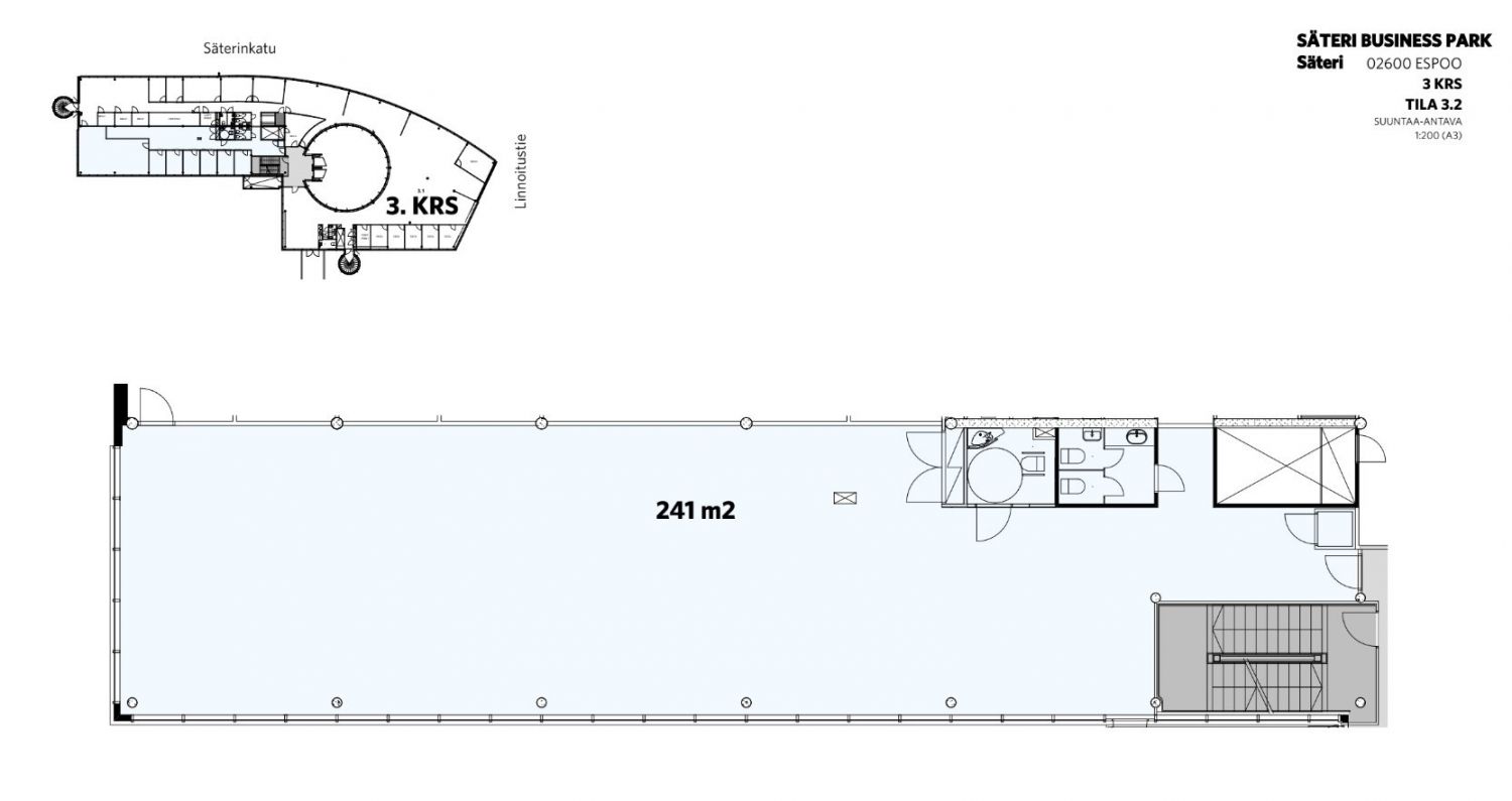
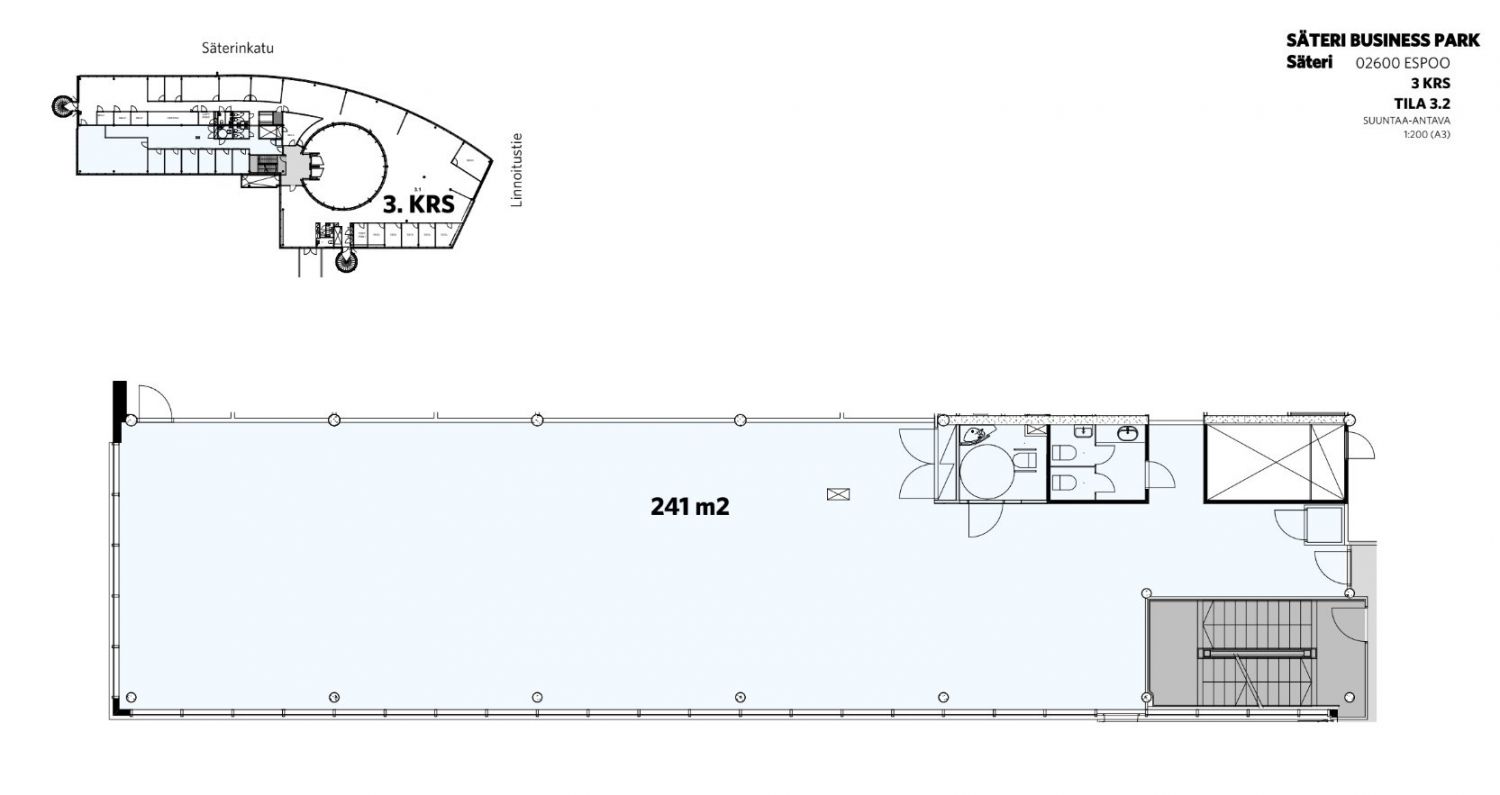
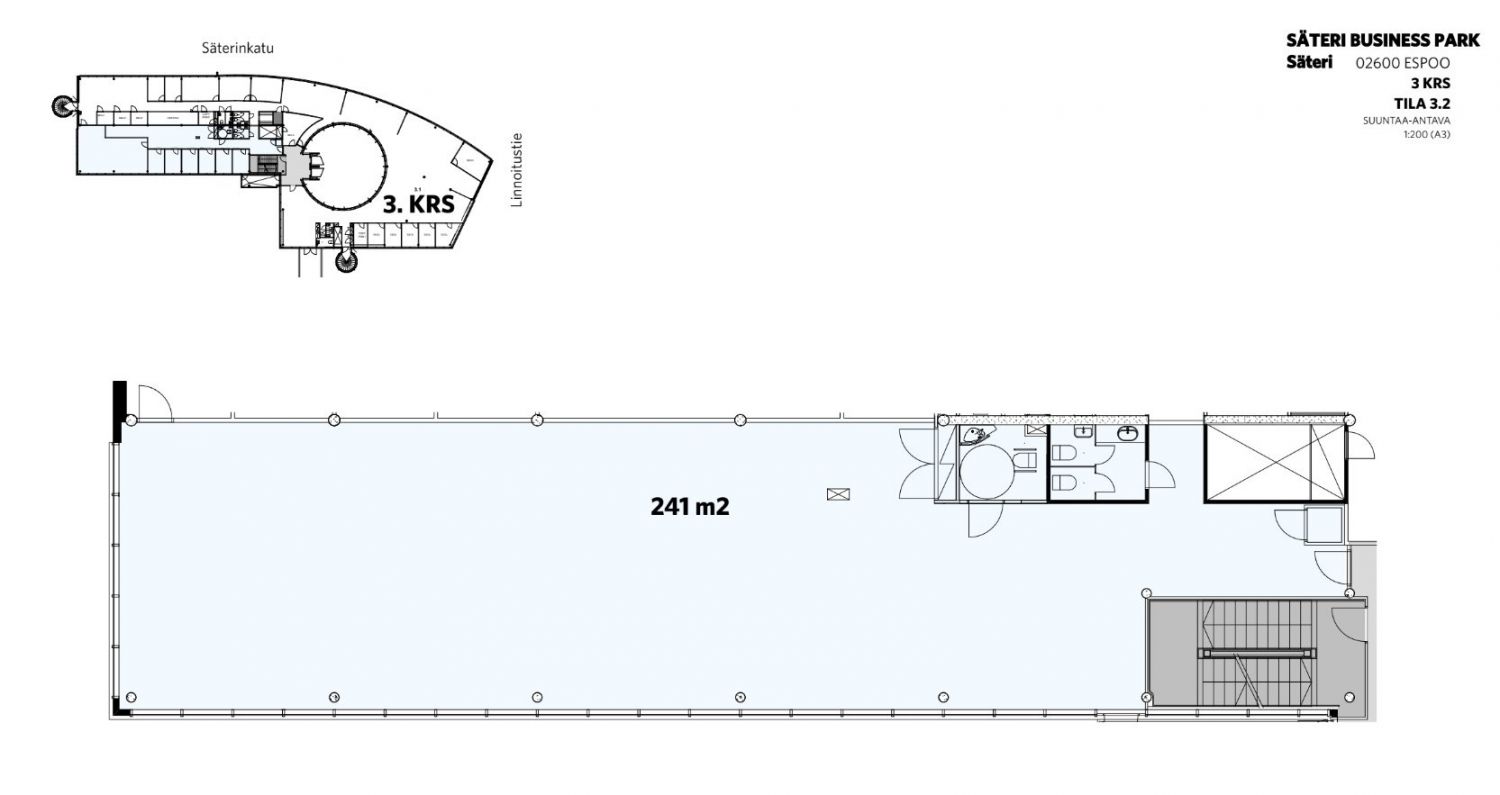
Kolmannen kerroksen valoisa toimistotila erinomaisella sijainnilla Espoon Leppävaarassa. Tila viimeistellään tulevan vuokralaisen toiveiden mukaan. Vielä on mahdollista vaikuttaa muun muassa lattian ja keittiön ilmeeseen.
Säteri Business Park koostuu kahdesta toimistotalosta - Linnoituksesta sekä Säteristä. Rakennusten kerroksen ovat muuntojoustavia, ja tiloista saadaan helposti sopivat moneenlaisiin tilatarpeisiin. Osassa Säterin toimistokerroksista on oma parveke ja avara näkymä lasiseinien läpi atrium-aulaan. Säteri-talon aulan yhteydessä on lounasravintola sekä kampaamo, ja ylimmästä kerrokesta löytyy laadukas kuntosali saunatiloineen sekä viihtyisät terassialueet. Linnoituksen aulapalvelun yhteydessä on 24/7 kahvilapiste, ja ylimmässä kerroksessa puolestaan edustavat tapahtuma- ja kokoustilat.
Säteri Business Park sijaitsee erinomaisella paikalla Epoon Leppävaarassa, liikenneyhteyksien solmukohdassa. Kiinteistö sijaitsee Kehä I:n ja Leppävaaran juna-aseman läheisyydessä, ja bussipysäkin sekä Raide-Jokerin pysäkin näkee talon nurkalta.
Me Croisettella autamme teitä löytämään teille parhaat tilat! Olemme puolueettomia asiantuntijoita ja tunnemme toimitilamarkkinat, talot sekä tilat vankalla kokemuksella. Meillä on välityksessä kaikki toimitilat ja tiedämme niiden alustavat vuokratasot.
Tehtävämme on tehdä toimitilahaustanne onnistunut ja helppo. Saamme palkkiomme kiinteistönomistajalta, joten sinulle palvelumme on täysin maksuton.
Hissi
Croisette Real Estate Partner
Erottajankatu 5 A 6, 00130 Helsinki
Näytä puhelinnumero
+358 400 585 857
Croisette Vuokraus
Näytä puhelinnumero
+358400585857
