Vuokrataan toimistotilat - Helsinki
John Stenbergin ranta 2, Siltasaari, 00530 Helsinki #10810140
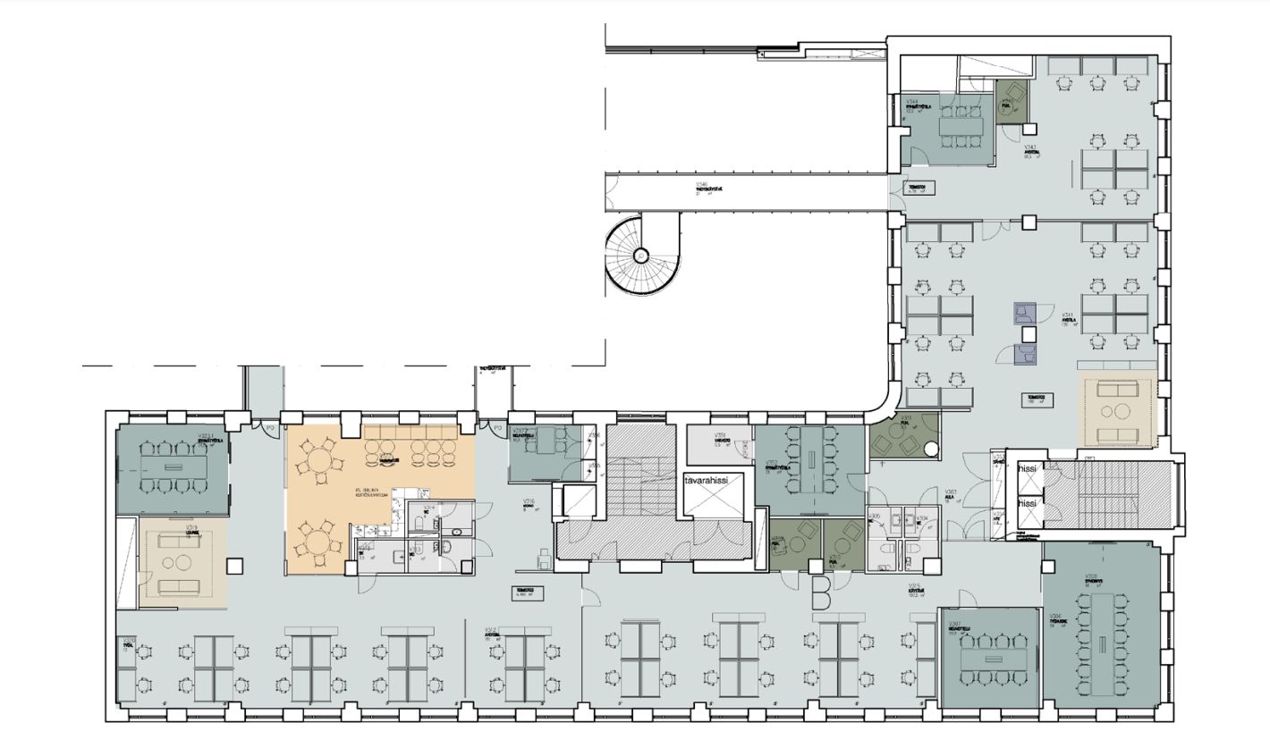
Vuokrattavana valoisaa ja modernia toimistotilaa upeilla näkymillä Kaisaniemen ja Eläintarhanlahden suuntiin.
Osoite
John Stenbergin ranta 2, 00530 Helsinki
Tilatyyppi
Toimistotilaa
1050 m2
Kiinteistö
Vuokrattavana valoisaa ja modernia toimistotilaa upeilla näkymillä Kaisaniemen ja Eläintarhanlahden suuntiin.
Sijainti
Hakaniemi, Helsinki
Pysäköinti
-Metro
-Bussi
-Oma auto
-Bussi
-Oma auto
Palvelut
-Aulapalvelu
-Lounasravintola
-Kuntosali
-Kokoustiloja
-Lounasravintola
-Kuntosali
-Kokoustiloja
Kulkuyhteydet
-Metro 300m
-Bussipysäkki 200m
-Raitiovaunupysäkki 200m
-Juna-asema 800m
-Bussipysäkki 200m
-Raitiovaunupysäkki 200m
-Juna-asema 800m
Vapautuu
Heti
Kerros
7
Energiatehokkuusluokka
Ei lain edellyttämää energiatodistusta
Näkyvällä paikalla
Hissi
Ota yhteyttä
REALIUM OY LKV
Tammasaarenkatu 1, 00180 Helsinki
Vaihde:
Näytä puhelinnumero
010 326 346
Tuomo Mäkelä
tuomo.makela@realium.fi
p.
Näytä puhelinnumero
044 050 1158
Joel Keto
joel.keto@realium.fi
p.
Näytä puhelinnumero
045 317 0330
KAIKKI TILAVAIHTOEHDOT KERRALLA!
SOITA - MEILAA JA TILAA NÄYTTÖ!
Ilmainen palvelu tilanhakijoille.
Kartoitamme parhaat tilavaihtoehdot.
Kaikki kohteet eivät ole netissä.
Pyydä lisätietoa
