Vuokrataan toimistotilat - Helsinki
Salmisaarenaukio 1, Salmisaari, 00180 Helsinki #10810134
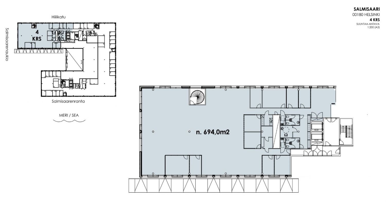
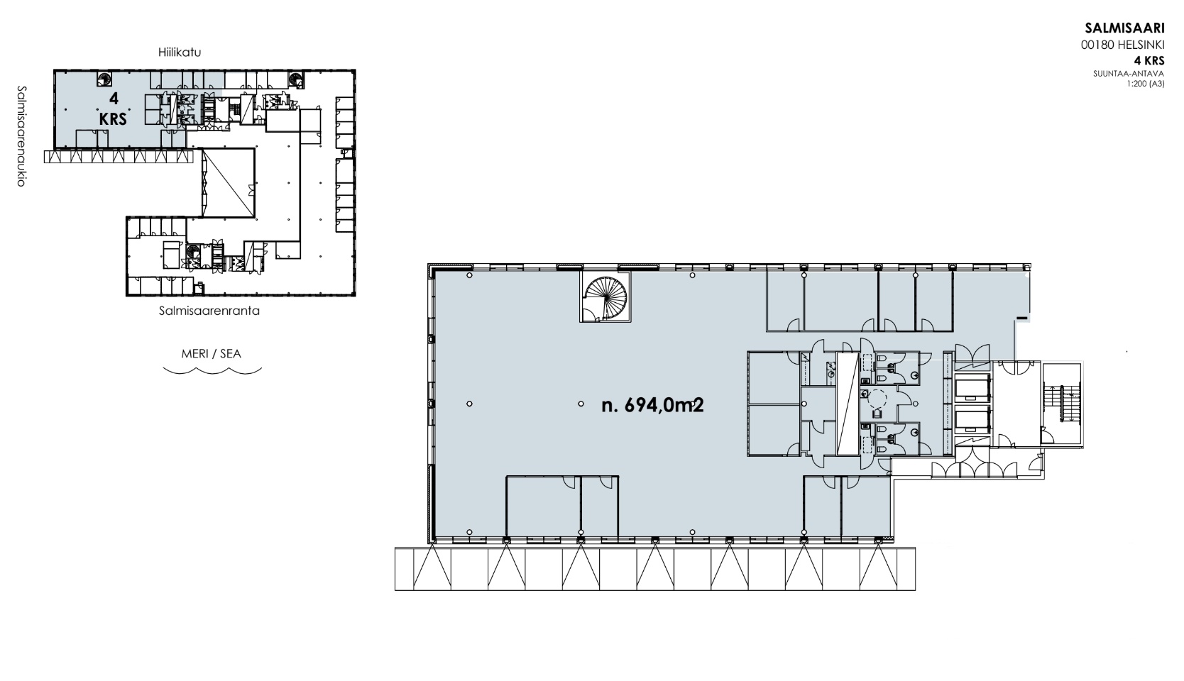
Pääkonttoritason toimisto läpitalon ikkunoilla ja osittaisilla näkymillä merelle. Toimiston huonekorkeus yltää noin neljään metriin. Tilajako on helposti mmuokattavissa tarpeen mukaan, joten tästä saadaan juuri teille sopiva kokonaisuus.
Salmisaarenaukio 1 tarjoaa erinomaisen sijainnin toiminnalle. Salmisaari ja Ruoholahti ovat alunperin teollisuus- ja varastoaluetta, joka on muuttunut 1990- ja 2000-luvuilla tärkeäksi yrityselämän keskittymäksi. Täällä kohtaavat historiallinen urbaani alue meren äärellä, teollinen ympäristö sekä huippumodernit pääkonttoritason toimistot. Vuonna 2007 valmistunut Salmisaarenaukio 1 rakennettiin alun perin korkeatasoiseksi pääkonttorikiinteistöksi. Kiinteistön on suunnitellut arkkitehtitoimisto Helin & Co Architects. Kiinteistö tarjoaa tyylikkäät ja muuntojoustavat toimitilat, jotka suunnitellaan tarpeidenne mukaisesti.
Me Croisettella autamme teitä löytämään teille parhaat tilat! Olemme puolueettomia asiantuntijoita ja tunnemme toimitilamarkkinat, talot sekä tilat vankalla kokemuksella. Meillä on välityksessä kaikki toimitilat ja tiedämme niiden alustavat vuokratasot.
Tehtävämme on tehdä toimitilahaustanne onnistunut ja helppo. Saamme palkkiomme kiinteistönomistajalta, joten sinulle palvelumme on täysin maksuton.
Hissi
Croisette Real Estate Partner
Erottajankatu 5 A 6, 00130 Helsinki
Näytä puhelinnumero
+358 400 585 857
Croisette Vuokraus
Näytä puhelinnumero
+358400585857
