Vuokrataan toimistotilat - Helsinki
Sahaajankatu 24, Herttoniemi, 00880 Helsinki #10810081
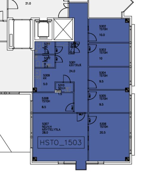
Vuokrattavana toimistotilaa Herttoniemestä.
Tämä 140,5 m² toimistotila sijaitsee kiinteistön 5. kerroksessa. Toimisto pintaremontoidaan uudelle vuokralaiselle.
Sahaajankatu 24 sijaitsee Herttoniemen teollisuusalueella, lähellä Itäväylää. Kiinteistön tilat soveltuvat erityisesti teollisuusalan toimijoille. Talossa on tilava tavarahissi. Alueelle on hyvät julkisen liikenteen yhteydet. Lähimmille metroasemille on noin 10 minuutin kävelymatka. Kiinteistön pihalla on pysäköintipaikkoja omalla autolla kulkeville.
Kysy lisää numerosta 044 723 4700 tai info@bref.fi. Palvelumme on tilanhakijoille ilmainen.
Bureau Real Estate Finland Oy
Lars Sonckin kaari 16, 02600 Espoo
Näytä puhelinnumero
0447234700
Bureau Real Estate Finland Oy
https://www.bref.fi