Vuokrataan toimistotilat - Espoo
Sinikalliontie 9, Mankkaa, 02630 Espoo #10810071
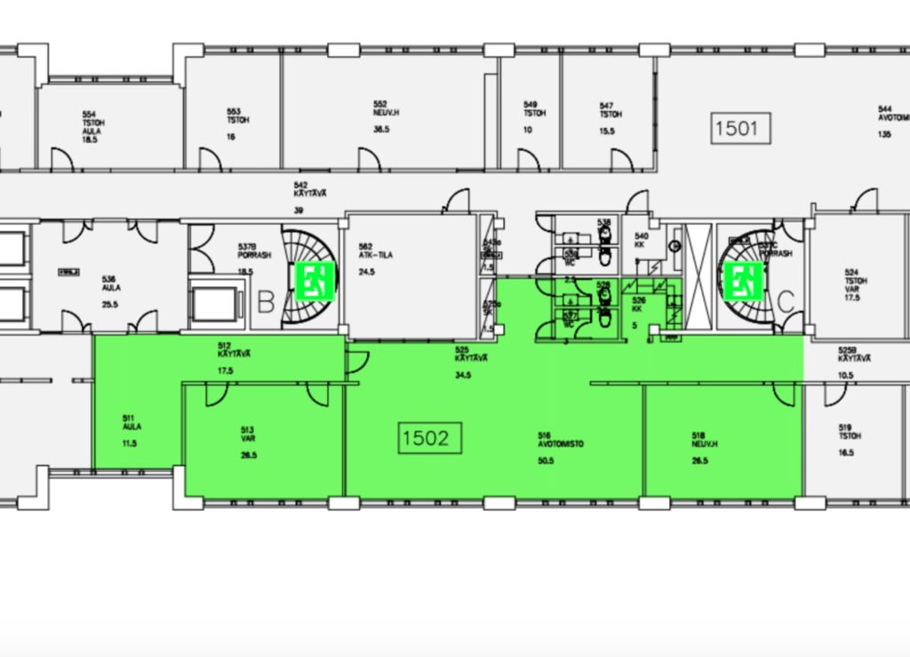
Vuokrattavana siistiä toimistotilaa Espoon Sinimäessä.
Tämä 184 m² toimistotila sijaitsee rakennuksen 5. kerroksessa. Tilassa on avotilaa, neuvottelutila, varasto sekä omat keittiö ja wc-tilat.
Sinikalliontie 9 on toimistokiinteistö Espoon Sinimäellä. Kohteesta löytyy erikokoisia tiloja niin pienille kuin suuremmillekin yrityksille. Kiinteistö on Turunväylän vieressä, joten kohteeseen on helppo pääsy autolla sekä busseilla.
Kysy lisää numerosta 044 723 4700 tai info@bref.fi. Palvelumme on tilanhakjoille ilmainen.
Hissi
Bureau Real Estate Finland Oy
Lars Sonckin kaari 16, 02600 Espoo
Näytä puhelinnumero
0447234700
Bureau Real Estate Finland Oy
https://www.bref.fi