Vuokrataan liiketilat, näyttelytilat, työtilat - Jyväskylä
Vuokrataan n. 115m2 liike - / työtilaa Gummeruksenkadulta, Gummeruksenkatu 6, Keskusta, 40100 Jyväskylä #10809985
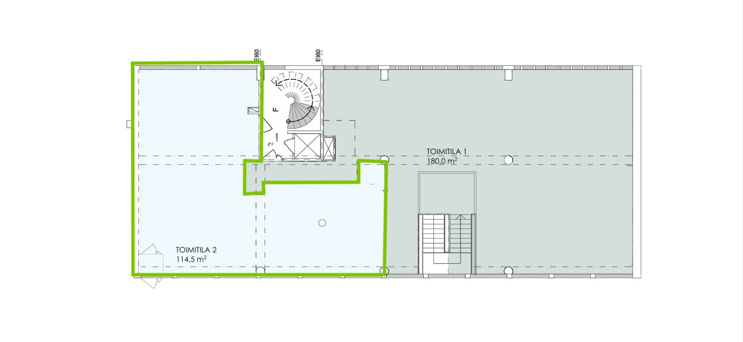
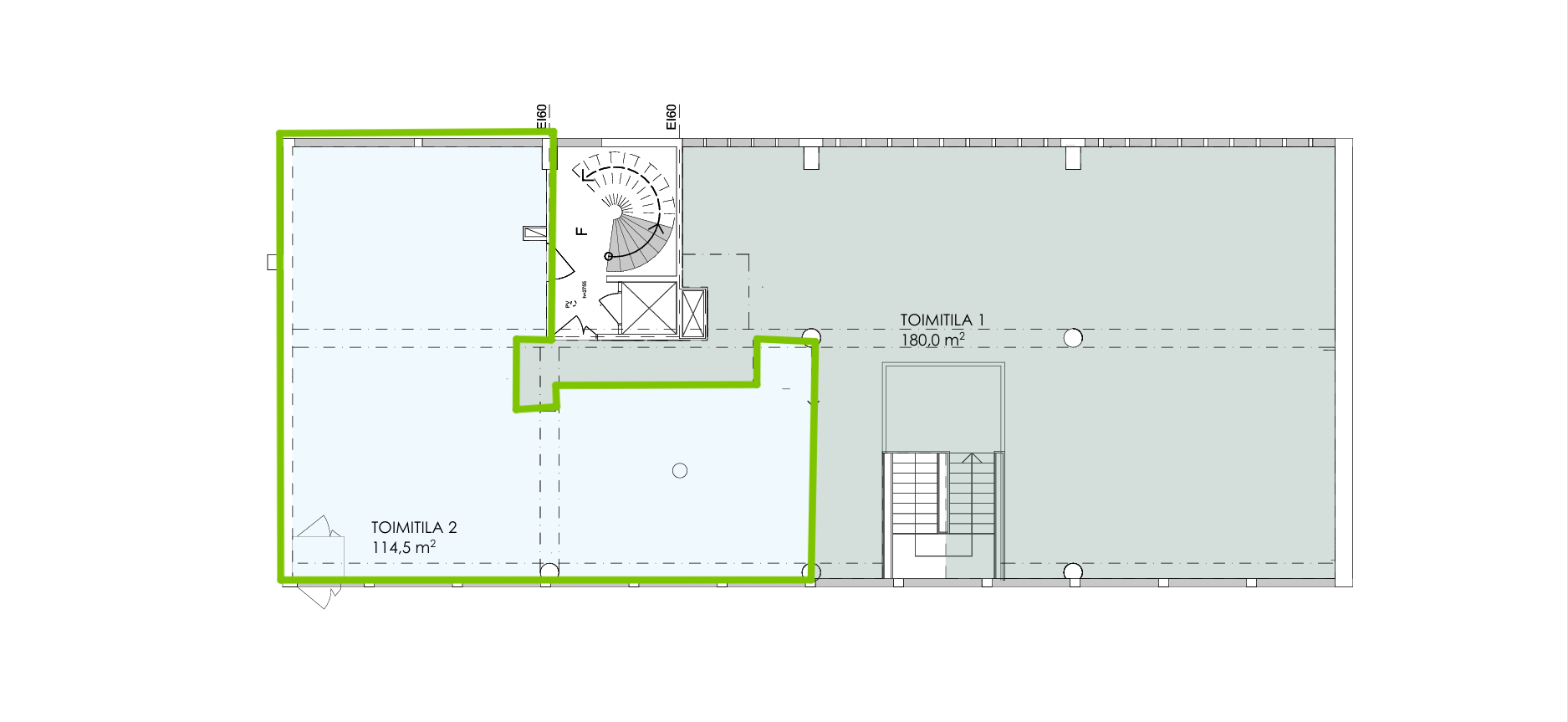
Vuokrataan Gummeruksenkadulta n. 115 m2 liike - / työtilaa. Katutason toimitila on monikäyttöinen, ja on muokattavissa vuokralaisten käyttöön. L-kirjaimen muotoinen tila (kts. pohjakuva!) on koostuu kolmesta lähes samankokoisesta huoneesta, ja soveltuu siis monipuolisesti eri käyttötarkoituksiin. Sosiaalitilat neuvoteltavissa sopimuksen mukaan.
Sijainti keskeisellä paikalla, Kirkkopuiston ylälaidalla Gummeruksenkadulla. Samassa kerroksessa toimii elektroniikkaliike, ja rakennuksen ylimmässä kerroksessa on toimistotilaa. Samasta rakennuksesta vuokrattavana myös varasto - / tukikohtatilaa.
Näytöt ja lisätiedot: Henri Kumpulainen, Puh. 040 864 3631, henri.kumpulainen@aveon.fi
Katutasossa
Näkyvällä paikalla
Aveon Real Estate Oy
Kauppakatu 18 C 26, 40100 Jyväskylä
Henri Kumpulainen
Puh.
Näytä puhelinnumero
040 864 3631
henri.kumpulainen@aveon.fi
Olemme kiinteistöliiketoiminnan asiantuntija, joka toimii yrittäjämäisesti neuvonantajana kiinteistökaupoissa, toimitilavälittämisessä sekä kiinteistökehityksessä.
Asiakkaitamme ovat kotimaiset ja ulkomaiset kiinteistönomistajat, -sijoittajat sekä tilojen käyttäjät kaikkialla Suomessa.
