Vuokrataan liiketilat - Helsinki
Siltasaarenkatu 16, Hakaniemi, 00530 Helsinki #10809982
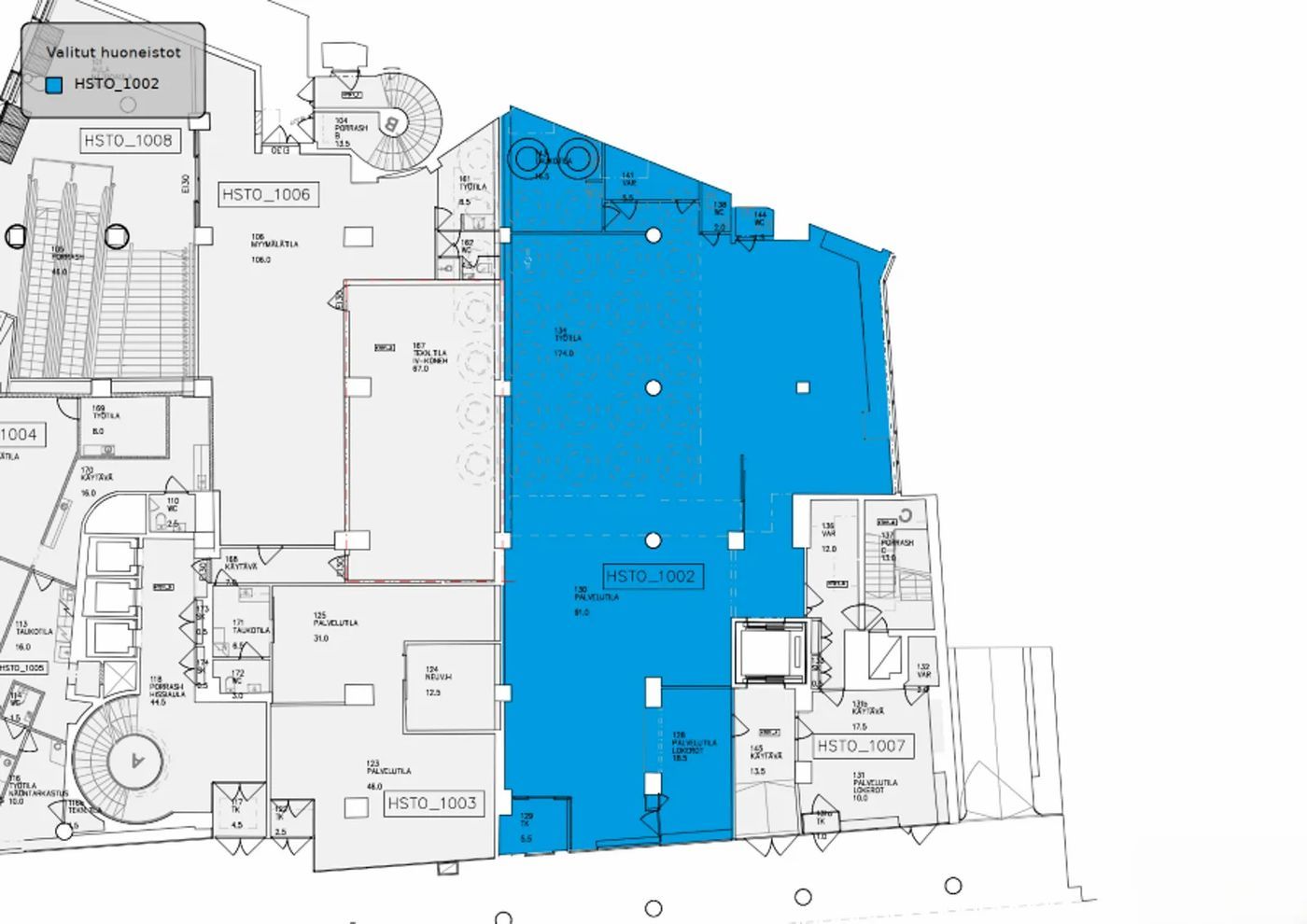
Kulku liiketilaan Säästöpankinrannan puolelta.
Eläintarhan lahti, viihtyisä rantabulevardi ja Hakanimen kauppahalli ovat aivan vieressä. Lähellä monipuolisesti palveluita, lounasravintoloita ja hyvät julkiset liikenneyhteydet. Ohessa kuvia kiinteistön tiloista.
Lisätietoja numerosta 020 7290 710. Lisää kohteita osoitteessa www.premises.fi.
Kohteella ei ole lain edellyttämää energiatodistusta.Kerros: 1
Osoite
Siltasaarenkatu 16, 00530 Helsinki
Tilatyyppi
Liiketilaa
318 m2
Kulkuyhteydet
Hakaniemeen hyvät liikenneyhteydet. Metroasema, raitiovaunu- ja bussipysäkit kohteen välittömässä läheisyydessä.
Ota yhteyttä
CRE PREMISES
Puh. Näytä puhelinnumero 020 7290 710
Vantaankoskentie 14
01670 VANTAA
Pyydä lisätietoa
