Vuokrataan toimistotilat - Helsinki
Sahaajankatu 24, Herttoniemi, 00880 Helsinki #10809961
Vuokrataan hyvää ja muunneltavaa toimistotilaa hyvien liikenneyhteyksien varrelta Herttoniemestä, teollisuusalueelta. Vuokrattavana toisesta kerroksesta toimistotilaa 147,5 m2 joka koostuu huoneista. Lastauslaituri ja tavarahissiyhteys.
Mahdollista vuokrata varastotilaa toimiston yhteyteen.
Kiinteistön pihalla vuokrattavissa autopaikkoja.
Lisätietoja numerosta 020 7290 710. Lisää kohteita osoitteessa www.premises.fi.
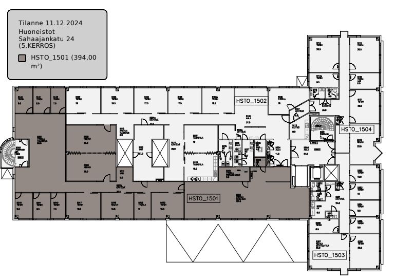
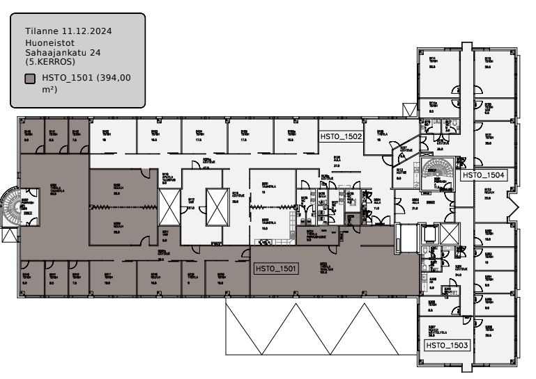
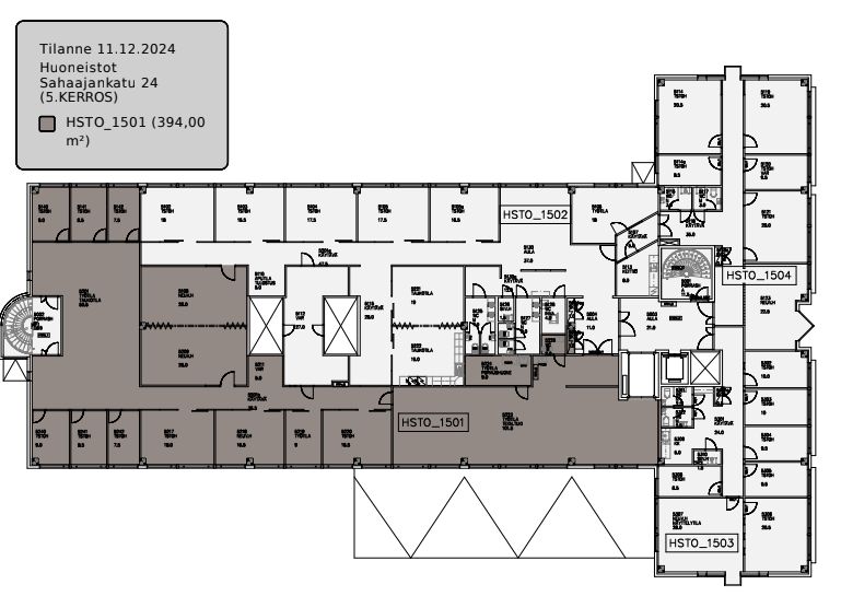
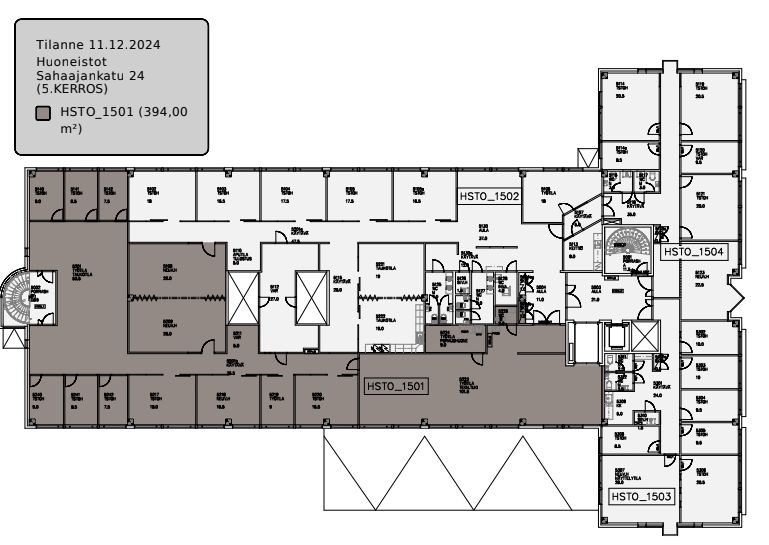
Kohteella ei ole lain edellyttämää energiatodistusta.Kerros: 5
Osoite
Sahaajankatu 24, 00880 Helsinki
Tilatyyppi
Toimistotilaa
394 m2
Kulkuyhteydet
Herttoniemeen on hyvät liikenneyhteydet, bussi- ja metropysäkit ovat välittömässä läheisyydessä. Kohde sijaitsee Itäväylän varrella.
Ota yhteyttä
CRE PREMISES
Puh. Näytä puhelinnumero 020 7290 710
Vantaankoskentie 14
01670 VANTAA
Pyydä lisätietoa
