Vuokrataan toimistotilat - Helsinki
Sahaajankatu 24, Herttoniemi, 00880 Helsinki #10809955
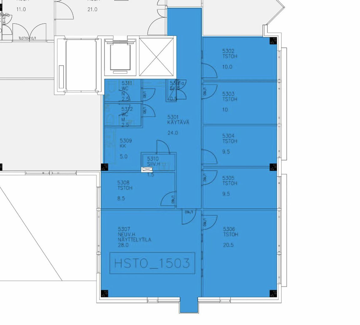
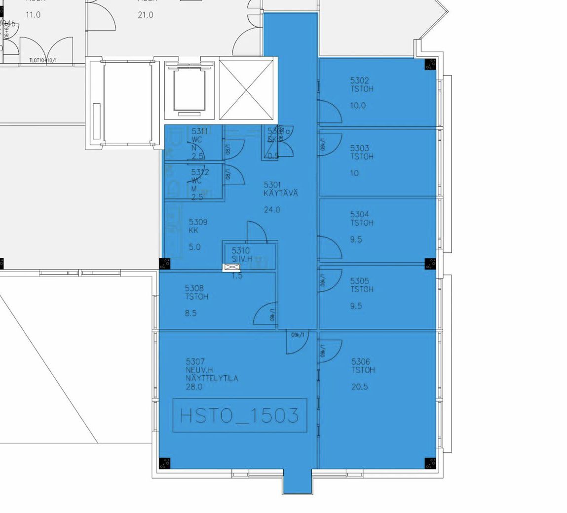
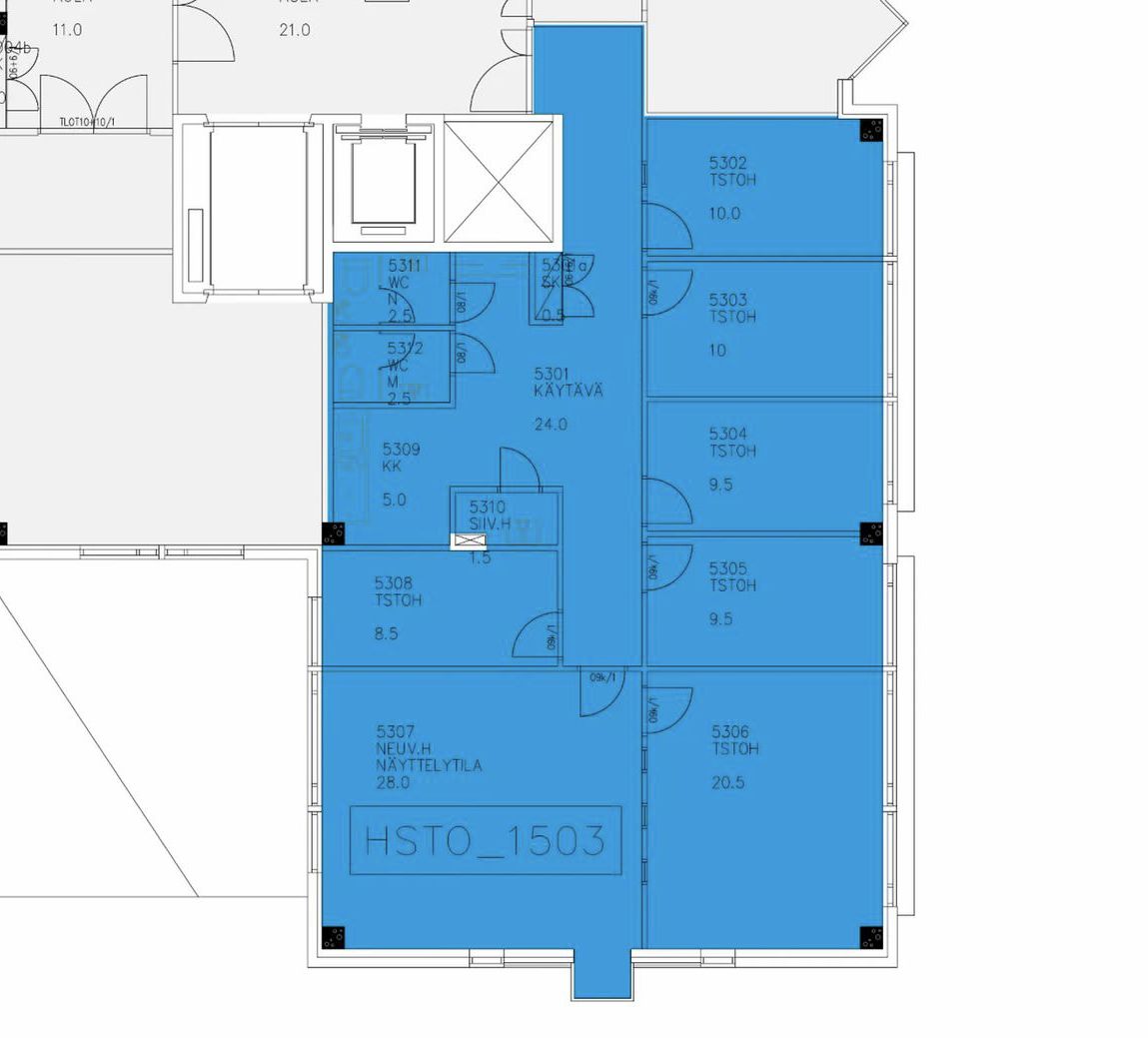
Toimisto-/tuotantotilaa viidennessä kerroksessa. Tilaan on tavarahissiyhteys.
Kiinteistö sijaitsee hyvien kulkuyhteyksien varrella Herttoniemen teollisuusalueella.
Mahdollista vuokrata varastotilaa toimiston yhteyteen.
Autopaikkoja on vuokrattavissa pihalla.
Lisätietoja numerosta 020 7290 710. Lisää kohteita osoitteessa premises.fi.
Kohteella ei ole lain edellyttämää energiatodistusta.Kerros: 5
Osoite
Sahaajankatu 24, 00880 Helsinki
Tilatyyppi
Toimistotilaa
140,5 m2
Kulkuyhteydet
Herttoniemeen on hyvät liikenneyhteydet, bussi- ja metropysäkit ovat välittömässä läheisyydessä. Kohde sijaitsee Itäväylän varrella.
Ota yhteyttä
CRE PREMISES
Puh. Näytä puhelinnumero 020 7290 710
Vantaankoskentie 14
01670 VANTAA
Pyydä lisätietoa
