Vuokrataan toimistotilat - Espoo
Sinikalliontie 9, Mankkaa, 02630 Espoo #10809953
Vuokrattavana toimistotilaa hyvien liikenneyhteyksien varrelta Mankkaalta. Kiinteistön pihalla on tarjolla autopaikkoja.
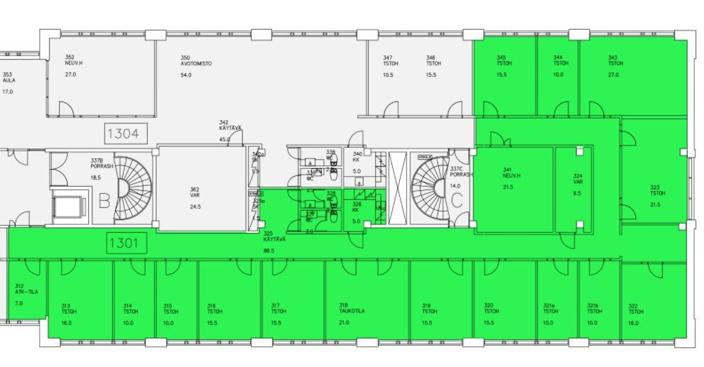
Vapaana kolmannesta kerroksesta 385 m2 toimistotila. Huoneistossa on oma neuvottelutila sekä sosiaali- ja taukotilat. Tila on on huoneellista ja se on muokattavissa asiakkaan tarpeen mukaan.
Lisätietoja numerosta 020 7290 710. Lisää kohteita osoitteessa premises.fi.
Energialuokka F.Kerros: 3
Osoite
Sinikalliontie 9, 02630 Espoo
Tilatyyppi
Toimistotilaa
385 m2
Kulkuyhteydet
Hyvät liikenneyhteydet Mankkaalla, lähellä Turunväylää ja Kehä II.
Liitetiedostot
Ota yhteyttä
CRE PREMISES
Puh. Näytä puhelinnumero 020 7290 710
Vantaankoskentie 14
01670 VANTAA
Pyydä lisätietoa
