Vuokrataan toimistotilat - Helsinki
Kaivokatu 10, Kluuvi, 00100 Helsinki #10809855
Toimistotilaa Helsingin keskustasta
Osoite
Kaivokatu 10, 00100 Helsinki
Tilatyyppi
Toimistotilaa
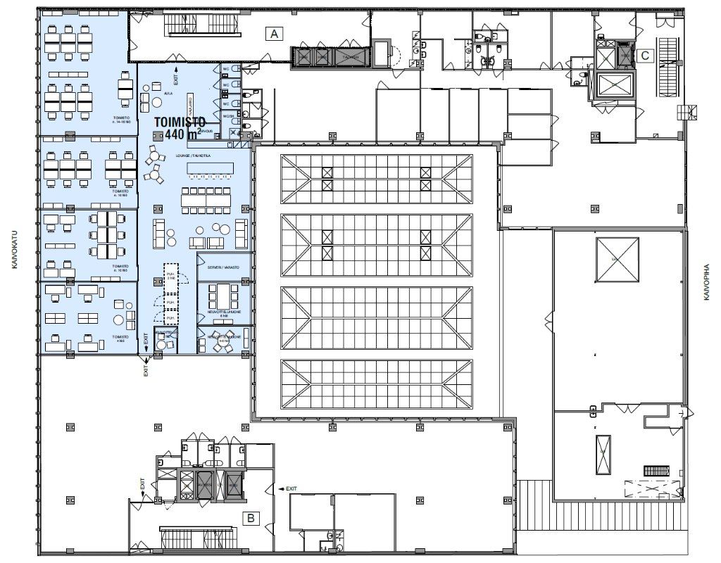
440 m2
Muuta
Vuokrattavana 440 m² toimistotila Helsingin keskustasta Kaivotalosta.
Toimisto sijaitsee rakennuksen 5. kerroksessa.
Kaivotalo on arkkitehti Pauli Salomaan suunnittelema, ja se tarjoaa tyylikkään sekä keskeisen sijainnin kaupungin sykkeessä. Erinomainen sijainti takaa helpon saavutettavuuden ja kaikki palvelut ovat lähellä.
Tervetuloa tutustumaan, varaathan välittäjältä oman esittelyaikasi. Voit kysyä meiltä myös muita sopivia vaihtoehtoja, kauttamme löydät juuri Teidän tarpeisiinne sopivat tilat.
Palvelumme on tilanhakijalle veloitukseton!
Toimisto sijaitsee rakennuksen 5. kerroksessa.
Kaivotalo on arkkitehti Pauli Salomaan suunnittelema, ja se tarjoaa tyylikkään sekä keskeisen sijainnin kaupungin sykkeessä. Erinomainen sijainti takaa helpon saavutettavuuden ja kaikki palvelut ovat lähellä.
Tervetuloa tutustumaan, varaathan välittäjältä oman esittelyaikasi. Voit kysyä meiltä myös muita sopivia vaihtoehtoja, kauttamme löydät juuri Teidän tarpeisiinne sopivat tilat.
Palvelumme on tilanhakijalle veloitukseton!
Vapautuu
Kysy
Rakennusvuosi
1955
Kerros
5
Ota yhteyttä
Tuloskiinteistöt Oy
Rikhardinkatu 2 B 5, 00130 Helsinki
Näytä puhelinnumero
(09) 6841 620
Jorma Ryynänen
Commercial Real Estate Advisor LKV, LVV
Näytä puhelinnumero
+358 40 708 4064
Otto Ahtola
Commercial Real Estate Advisor
Näytä puhelinnumero
+358 40 042 2830
Pyydä lisätietoa
