Vuokrataan toimistotilat - Helsinki
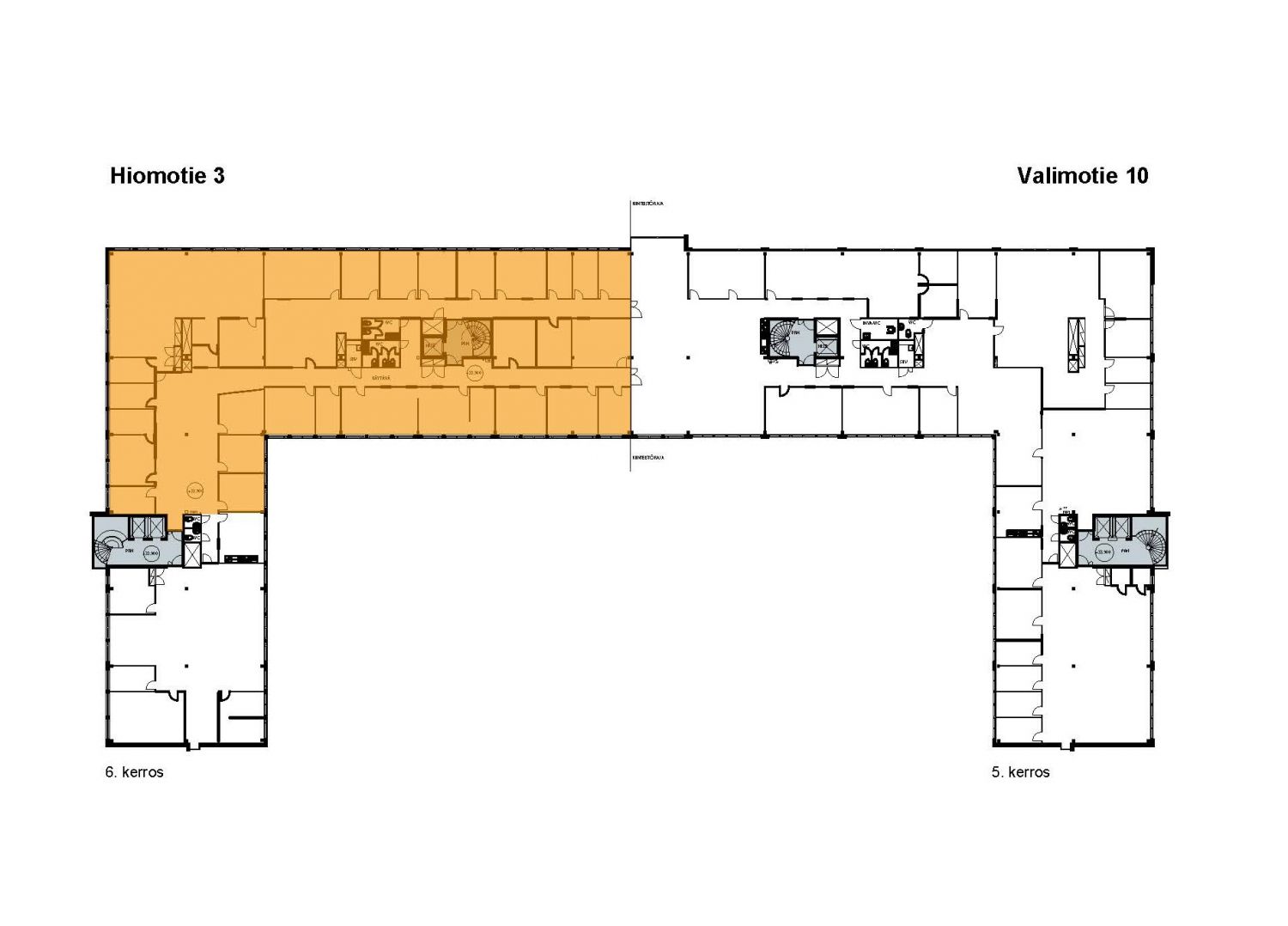
Hiomotie 3 6.krs 904 m², Hiomotie 3, Pitäjänmäki, 00380 Helsinki #10809826
Toimistotila Hiomotien rakennuksen ylimmässä kerroksessa. Kokonaisuus sisältää avointa olohuonemaista tilaa, toimistohuoneita sekä neuvottelutilaa. Omat wc-tilat. Tila on monipuolisesti muunneltavissa vuokralaisen käyttöön sopivaksi esimerkiksi muuttamalla huonejärjestystä ja avaamalla tilaa avonaisemmaksi. Suunnittelemme tarvittavat remontit ja muutostyöt aina asiakaskohtaisesti.
Valimo Centerin kaikkia vuokralaisia palvelee Valimotie 13a:n aulapalvelu, josta hoituu myös postien vastaanotto, edelleenlähetys sekä pakettipalvelut. Samasta rakennuksesta löydät talon oman kuntosalin, jonne pääsee kulkuavaimella klo 5-21. Katutasossa runsaan lounaan arkipäivisin tarjoilee Ravintola Factory. Mikäli tarvetta on kokoustiloille, löytyy niitä joustavasti vuokrattavana aina 2-20:lle henkilölle.
Katso videoesittely Valimo Centeristä: https://youtu.be/W4-0X0CgEa0
Tästä kohteesta voit olla yhteydessä pääkaupunkiseudun vuokrauspäällikköömme Artoon.
Puh. 044 906 2226 / Arto Haavisto
- Valmistunut vuonna 1994, peruskorjattu 2017
- Pinta-ala: 10 911 m², kerrospinta-ala 1 172 m², jaettavissa 300 m² / 800 m²
- Kerrosten lukumäärä: 6
- Lastauslaituri (Valimotie 10 kanssa yhteinen)
- 3 henkilöhissiä
- Koneellinen jäähdytetty ilmanvaihto
- Turvallista kulunvalvottua tilaa
- Autopaikat: 270 kpl autohallissa, katoksessa ja pihapaikoilla (yhdessä Valimotie 10:n kanssa)
Jaettavissa
Hissi
Lastauslaituri
Nurmi-Yhtiöt Oy
Nurmi Kiinteistöt
Jousitie 7
20760 Piispanristi
puh.
Näytä puhelinnumero
044 906 2226
/ Arto Haavisto (pk-seutu)
puh.
Näytä puhelinnumero
040 624 0344
/ Ilias Niemi (Varsinais-Suomi)
