Vuokrataan toimistotilat - Helsinki
Hermannin Rantatie 8, Kalasatama, 00580 Helsinki #10809795
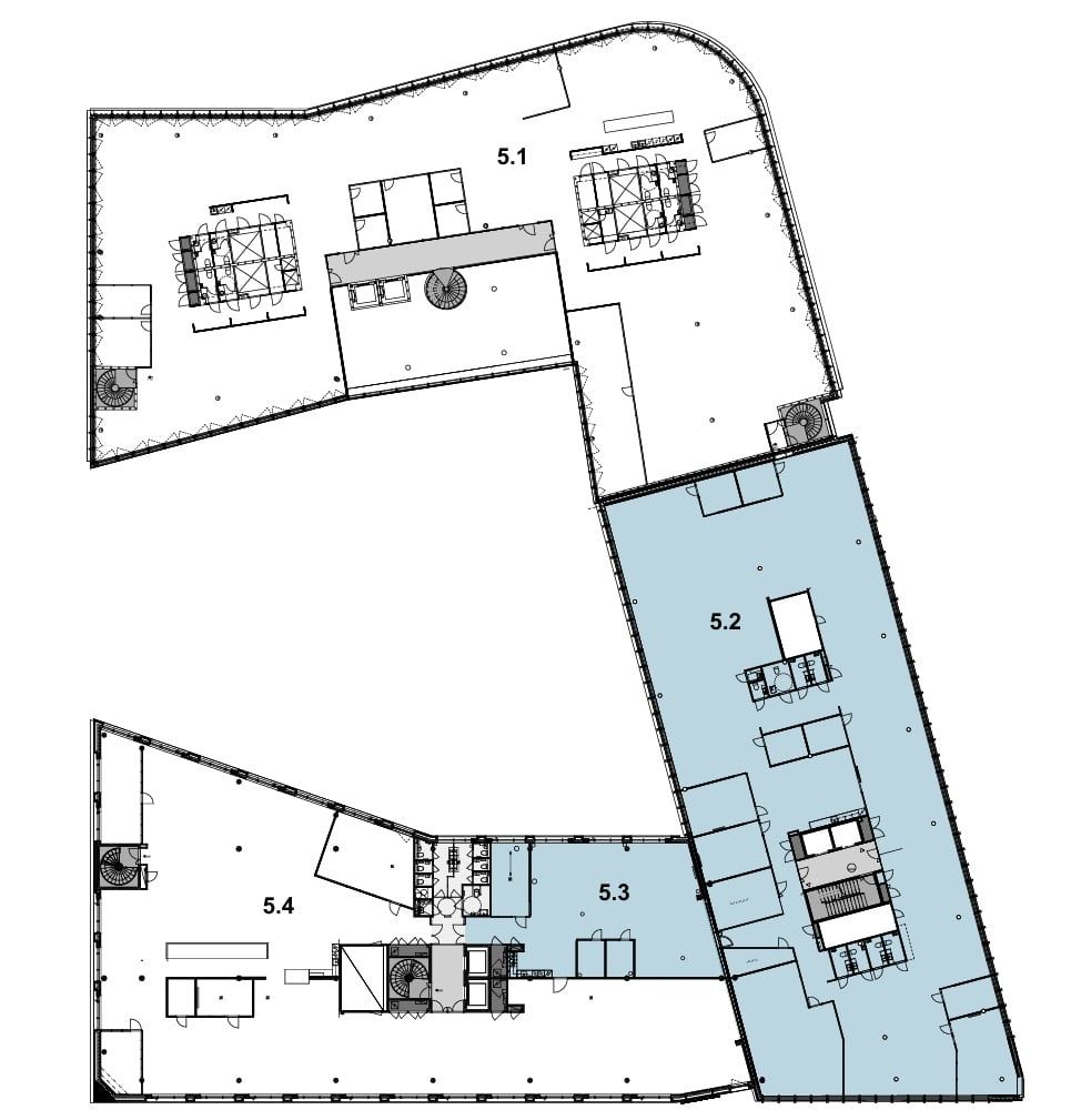
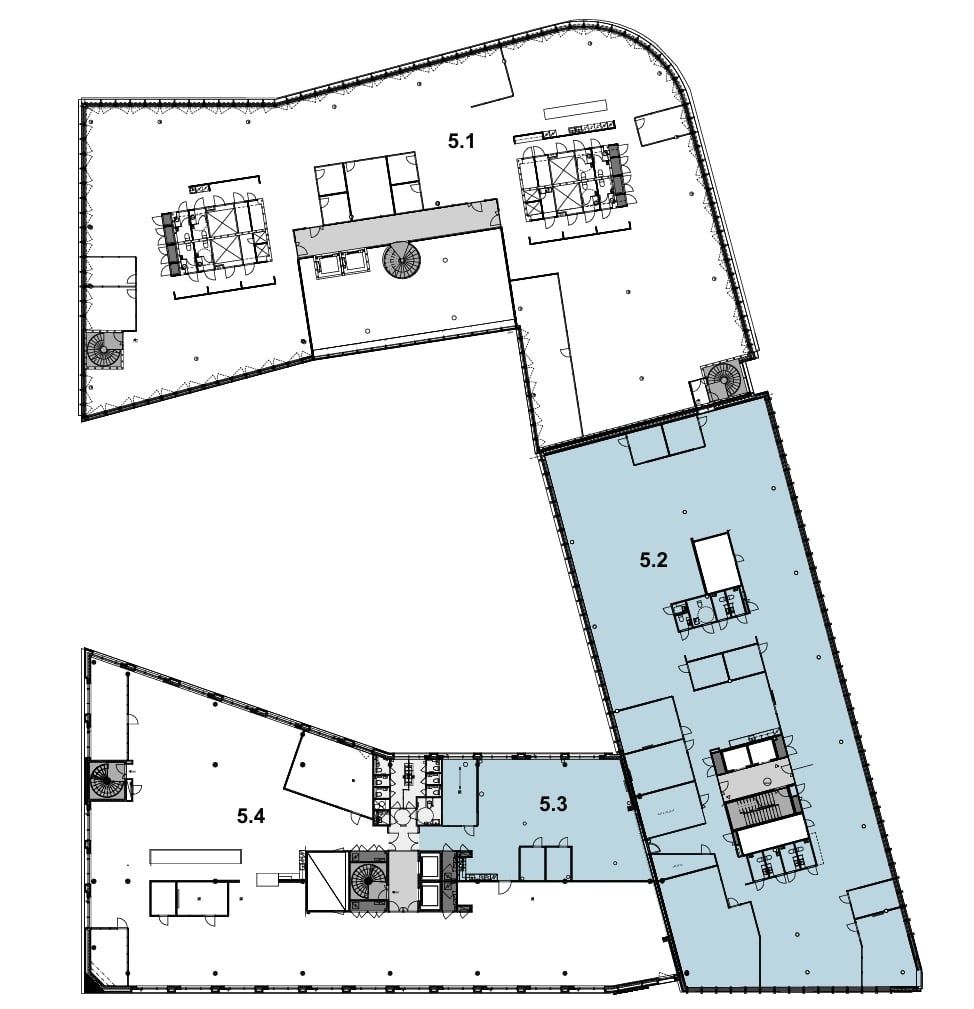
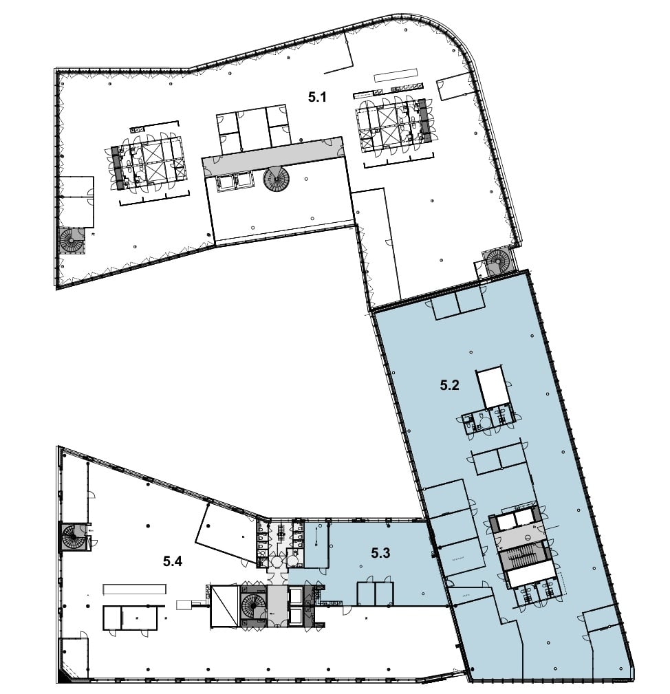
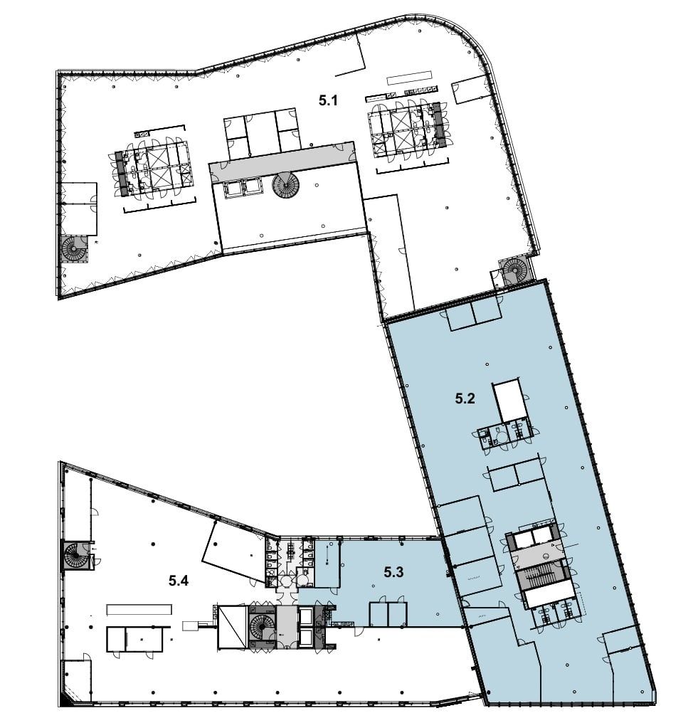
Viidennen kerroksen toimistotila pääosin avoimella pohjaratkaisulla. Avotilan lisäksi toimistossa on oma neuvottelutila sekä kaksi työhuonetta. Oma taukokeittiö sujuvoittaa päivän kulkua. Tila on merkattu pohjakuvassa numerolla 5.3, ja se voidaan vuokrata yhdessä 1055 m2 viereisen tilan kanssa. Ilmoituksen kuvat ovat havainnekuvia rakennuksen tiloista eivätkä välttämättä vastaa juuri tätä tilaa.
Rantatie Business Park osoitteessa Hermannin rantatie 8 on tyylikäs ja moderni toimistotalo Kalasataman sydämessä. Uudet ja laadukkaat tilat ovat muuntojoustavia ja ne mukautuvat helposti vuokralaisen yksilöllisiin tarpeisiin. Rantatie Business Park koostuu kolmesta osasta: Original, Kasvu ja Loikka. Kiinteistön laajennusosat Kasvu ja Loikka ovat ympäristösertifioitu LEED® Gold -tasolle. Loikan katolla olevat aurinkopaneelit antavat energiaa rakennuksen ilmavaihtokoneille. Talon palveluihin kuuluu mm. aulapalvelut, neuvotteluhuoneet ja ravintola, josta saat maukkaan lounaan. Oman auton saa päivän ajaksi parkkihalliin lataukseen, ja pyöräilijöitä palvelevat pyöräparkki sekä sosiaalitilat.
Me Croisettella autamme teitä löytämään teille parhaat tilat! Olemme puolueettomia asiantuntijoita ja tunnemme toimitilamarkkinat, talot sekä tilat vankalla kokemuksella. Meillä on välityksessä kaikki toimitilat ja tiedämme niiden alustavat vuokratasot.
Tehtävämme on tehdä toimitilahaustanne onnistunut ja helppo. Saamme palkkiomme kiinteistönomistajalta, joten sinulle palvelumme on täysin maksuton.
Hissi
Croisette Real Estate Partner
Erottajankatu 5 A 6, 00130 Helsinki
Näytä puhelinnumero
+358 400 585 857
Croisette Vuokraus
Näytä puhelinnumero
+358400585857
