Vuokrataan toimistotilat - Tampere
Finlaysoninkuja 9, 33210 Tampere #10809791
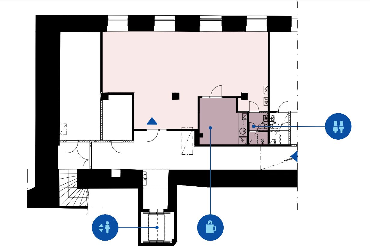
Vuokrattavana siistiä avotoimistotilaa Finlaysonin alueelta.
Osoite
Finlaysoninkuja 9, 33210 Tampere
Tilatyyppi
Toimistotilaa
87 m2
Kiinteistö
Vuokrattavana siistiä avotoimistotilaa Finlaysonin alueella. Tila remontoidaan vuokralaiselle sopivaksi.
Sijainti
Tampereen keskusta
Pysäköinti
Finlaysonin alueella on oma yli 600 autopaikan pysäköintilaitos P-Plevna.
Palvelut
Tampereen keskustan monipuoliset palvelut ovat kävelyetäisyydellä.
Kulkuyhteydet
- Bussi
- Juna
- Oma auto
- Juna
- Oma auto
Vapautuu
Heti
Kerros
1
Energiatehokkuusluokka
Ei lain edellyttämää energiatodistusta
Katutasossa
Näkyvällä paikalla
Hissi
Ota yhteyttä
REALIUM OY LKV
Tammasaarenkatu 1, 00180 Helsinki
Vaihde:
Näytä puhelinnumero
010 326 346
Tuomo Mäkelä
tuomo.makela@realium.fi
p.
Näytä puhelinnumero
044 050 1158
Joel Keto
joel.keto@realium.fi
p.
Näytä puhelinnumero
045 317 0330
KAIKKI TILAVAIHTOEHDOT KERRALLA!
SOITA - MEILAA JA TILAA NÄYTTÖ!
Ilmainen palvelu tilanhakijoille.
Kartoitamme parhaat tilavaihtoehdot.
Kaikki kohteet eivät ole netissä.
Pyydä lisätietoa
