Vuokrataan liiketilat - Jyväskylä
Vuokrataan n. 400m2 liiketilaa Tourulasta, Tourulantie 11, Tourula, 40100 Jyväskylä #10809786
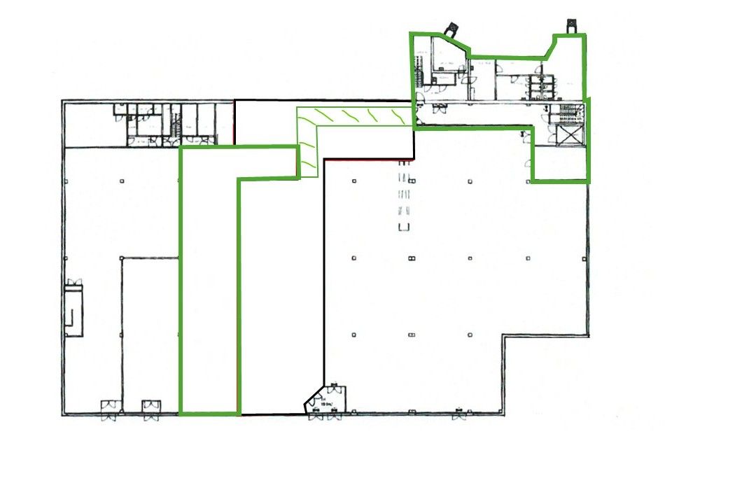
Vuokrataan n. 400m2 selkeää liiketilaa Tourulantien varresta näkyvällä sijainnilla. Näyteikkunatilaa sisäänkäynnin yhteydessä. L-kirjaimen muotoisen myymälätilan leveys n. 8,4m ja pituus n. 39m etuosassa, takaosassa olevan tilan leveys n. 4,5m ja pituus n. 8,5m. Liikekiinteistön takapuolella lastaussilta, josta tavarahissillä yhteys tämän liiketilan tasolle alakertaan. Tavarahissin leveys n. 2,5m ja pituus n. 3,6m, kantavuus 2200 kg.
Samassa kiinteistössä toimivat esimerkiksi S-Market Tourula, Wolt Market sekä Ride-polkupyöräkauppa sekä Isku ja Vepsäläinen. Vuokraan kuuluu liiketilan lisäksi yhteiskäyttöiset keittiö- sekä sosiaalitilat muiden kiinteistön käyttäjien kanssa.
Pihalla reilusti parkkitilaa kiinteistössä asioiville.
Lisätiedot ja näytöt: Henri Kumpulainen, 040 864 3631, henri.kumpulainen@aveon.fi
Katutasossa
Näkyvällä paikalla
Aveon Real Estate Oy
Kauppakatu 18 C 26, 40100 Jyväskylä
Henri Kumpulainen
Puh.
Näytä puhelinnumero
040 864 3631
henri.kumpulainen@aveon.fi
Olemme kiinteistöliiketoiminnan asiantuntija, joka toimii yrittäjämäisesti neuvonantajana kiinteistökaupoissa, toimitilavälittämisessä sekä kiinteistökehityksessä.
Asiakkaitamme ovat kotimaiset ja ulkomaiset kiinteistönomistajat, -sijoittajat sekä tilojen käyttäjät kaikkialla Suomessa.
