Vuokrataan toimistotilat - Helsinki
Fredrikinkatu 48, Kamppi, 00100 Helsinki #10809745
Toimistotilaa Helsingin keskustan tuntumassa, Kampissa.
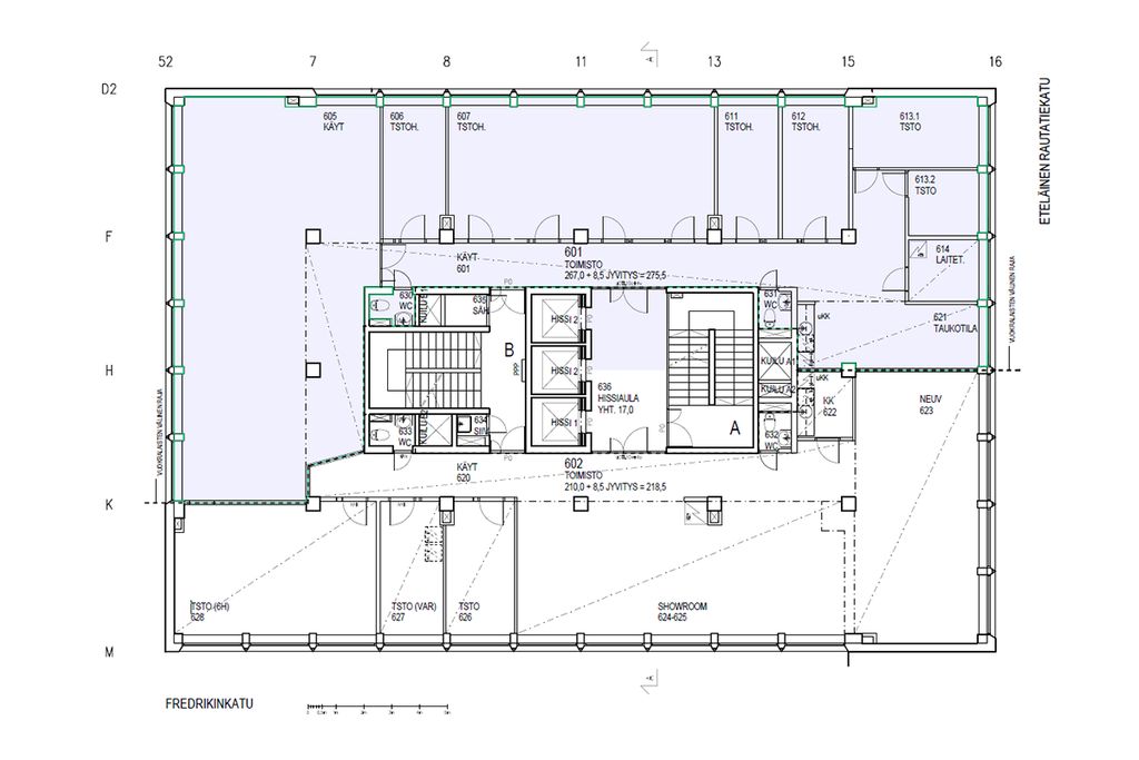
Kyseinen 275,5 m² toimisto sijaitsee kiinteistön 6. kerroksessa. Toimistossa on sekä huoneita että avotilaa.
Fredrikinkatu 48 on Autotalokortteliin kuuluva 12-kerroksinen toimisto- ja liikekiinteistö Helsingin Kampissa. Kiinteistön katutasossa on liiketiloja ja ylemmissä kerroksissa valoisia toimistotiloja. Kiinteistöä on remontoitu nykyaikaisia tarpeita vastaavaksi. Kiinteistön toimistokerroksista on suora hissiyhteys parkkihalliin ja pyöräilijöille on pyöräparkki.
Kysy lisää numerosta 044 723 4700 tai info@bref.fi. Palvelumme on tilanhakijoille ilmainen.
Bureau Real Estate Finland Oy
Lars Sonckin kaari 16, 02600 Espoo
Näytä puhelinnumero
0447234700
Bureau Real Estate Finland Oy
https://www.bref.fi