Vuokrataan toimistotilat - Helsinki
Malminkatu 28, Kamppi, 00100 Helsinki #10809697
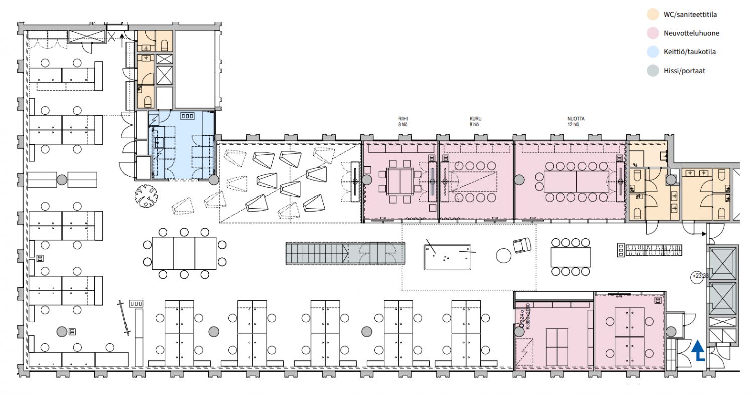
Vuokrattavana laadukasta ja tasokasta toimistotilaa, jossa mahdollisuus useille neuvottelutiloille.
Osoite
Malminkatu 28, 00100 Helsinki
Tilatyyppi
Toimistotilaa
525 m2
Kiinteistö
Vuokrattavana laadukasta ja tasokasta toimistotilaa hyvällä paikalla Helsingin Kampissa. Ikkunoita kolmeen suuntaan.
Sijainti
Kamppi, Helsinki
Pysäköinti
Autoilijoita puolestaan palvelevat keskustan suuri maanalainen parkkihalli tai perinteisempi kadunvarsipysäköinti.
Palvelut
Keskustan palvelut vieressä.
Kulkuyhteydet
-Metro
-Raitiovaunu
-Bussi
-Oma auto
-Raitiovaunu
-Bussi
-Oma auto
Vapautuu
Heti
Kerros
3
Energiatehokkuusluokka
Ei lain edellyttämää energiatodistusta
Näkyvällä paikalla
Hissi
Ota yhteyttä
REALIUM OY LKV
Tammasaarenkatu 1, 00180 Helsinki
Vaihde:
Näytä puhelinnumero
010 326 346
Tuomo Mäkelä
tuomo.makela@realium.fi
p.
Näytä puhelinnumero
044 050 1158
Joel Keto
joel.keto@realium.fi
p.
Näytä puhelinnumero
045 317 0330
KAIKKI TILAVAIHTOEHDOT KERRALLA!
SOITA - MEILAA JA TILAA NÄYTTÖ!
Ilmainen palvelu tilanhakijoille.
Kartoitamme parhaat tilavaihtoehdot.
Kaikki kohteet eivät ole netissä.
Pyydä lisätietoa
